想让家靓丽起来,大家对于软装搭配就应该上心,要知道硬kaiyun官方登录 开云网址装是房子的根,后期的软装便是枝叶,房子的颜值高低,可是和他息息相关的。可是,很多业主都kaiyun官方登录 开云网......
...
贝壳团装是贝壳旗下品牌,专注为新房团体用户提供集设计、施工、定制、软装、家电服务于一体的全案装修服务。依托贝壳及圣都在“房产”及“家装”行业的双重经验加持,更懂空间格局和居住品质。全面整合供应链能......
2004年,嘉保信装饰集团成立于烟台,是一家以“设计为先+产品为本+交付为王=品质装修”的大家居集成化服务商,历经二十年的发展,嘉保信装饰已成为拥有品牌“嘉保信整装、嘉保信墅装、嘉保信软装”等服务......
谈起今年家电市场的热词,无疑是“以旧换新”。随着以旧换新消费促进活动的持续开展,家电消费市场的“热力值”持续走高。在我市,京东电器、苏宁易购两家家电销售龙头企业推出系列惠民活动,积极响应以旧换新行......
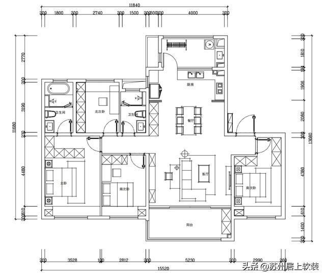
2:动线:客厅、餐厅、厨房等主要功能间的尺寸以及比例适中,有利于采光和通风,居住起kaiyun官方登录 开云网址kaiyun官方登录 开云网址来舒适、方便。 :1、打通南阳台融入客厅空间,打通北......