Kaiyun(开云中国)-官方网站

kaiyun网站:苏州软装设计保利天和珺庭162㎡软装设计解析-Kaiyun官方网址|登录入口

您当前位置:

首页 > 新闻动态 > 行业新闻

kaiyun网站:苏州软装设计保利天和珺庭162㎡软装设计解析

发布时间:2024-05-17 浏览次数:

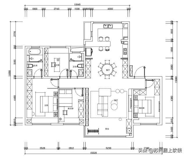
  2:动线:客厅、餐厅、厨房等主要功能间的尺寸以及比例适中,有利于采光和通风,居住起kaiyun官方登录 开云网址kaiyun官方登录 开云网址来舒适、方便。

kaiyun网站:苏州软装设计保利天和珺庭162㎡软装设计解析(图1)

kaiyun网站:苏州软装设计保利天和珺庭162㎡软装设计解析(图2)

  :1、打通南阳台融入客厅空间,打通北阳台融入厨房空间,扩大厨房实用面积;

  3、改变主卧床头摆放位置,靠墙做一整排衣柜+梳妆台,主卧空间尺度更舒适,动线、改变南中次卧床摆放位置,增加学习书桌和收纳衣柜,北次卧做独立书房。

联系地址:河北省石家庄市长安区西兆通镇天山北大街36号乐城国际贸易城凯尊国际电商直播大厦12A20

联系电话:0311-82229058

E-mail:596931254@qq.com

服务热线:18233155969

扫一扫,关注我们

Copyright © 2024 开云家居设计工作室 版权所有

冀ICP备2023005676号