【普陀中环云悦府】官方售楼处电线小时热线)抢占低密度住宅!『友情提示 :样板间采取预约制,欢迎提前来电预约参观』普陀中环桃浦生态区「象屿交控·中环云悦府」建面约85-135㎡3-4房,距离15号线......
所谓轻奢,实际上是以极致简约风格为基础,通过一些精致的软装元素来凸显质感,同时也浓缩着意想不到的功能与细节,从而彰显了一种高品质的生活方式。 此案例是铂悦澜庭精选案例,由公司从50多个案例之中挑......
2024年6月13日吉时14点08分,伴随着最后一方混凝土的浇筑完成,美的·北京路9號3栋封顶仪式隆重举办。项目总经理季亚星、重庆渝发建设有限公司区域总经理倪启龙和监理单位负责人等出席了本次活动,......
蓉旅光华(成都)置业有限公司成都青羊QY10(25121)2023-078(小高层住宅+独立商业)示范区及大区软装设计、供应及安装资格预审公告 成都青羊QY10(251 21)2023-078(......
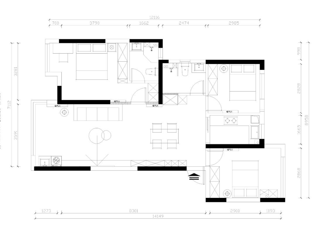
我们让家更艺术,让家人爱上回家! 拜斯达装饰:免费量房,验房,出方案等服务 大家好!本期案例是位于中建宏泰阅江府的现代简约风的115平住宅,由设计师吴晓彬精心打造。设计师充分考虑了方正户型的特点......
佳运·瑞璟湾位于大宁北共富板块,距离上海市中心人民广场直线 公里,是上海北区少有的中外环间的新盘。项目周边有1号线号线号线米是南北高架联谊路路口,坐拥宝山更出色的地段。 根据规划,佳运·瑞璟湾西......