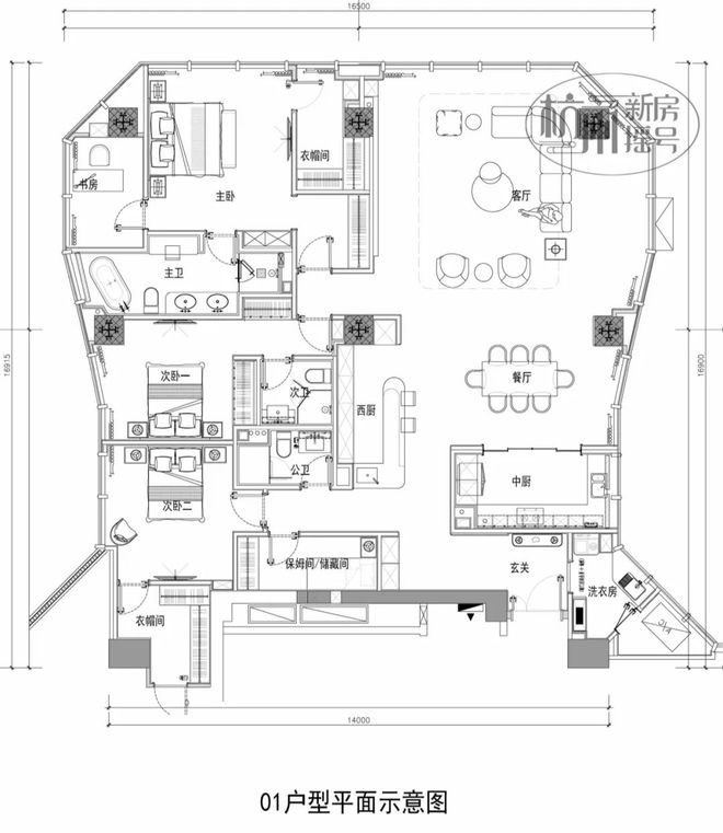
地铁线路共同组成多维立体交通网,畅达全城连接世界,这一次,在亚奥板块,让时间追逐人的足迹。项目自带配套设施十分完善,包括会所、恒温泳池和健身房,业主可以在这些设施中享受高品质的健康生活。同时,三面全景落地玻璃设计可以让居民尽情欣赏城市的美景,感受城市的魅力。白色的岩板与桃木背景墙让人联想到枫丹白露宫殿的动人秋天。打造生活中的高级感不需要繁琐复杂的浮夸装饰,而是要在空间之内做减法。深色与浅色的交叠呼应之间,让曲线与直线共同构建空间的秩序,匹配房间整体弧形外观,打造内部张弛有度、流畅自如的线条感。开放的客餐厅打破桎梏,餐桌选择了金属与石材结合的独特设计。在完美的采光环境下,让每一次品尝美食的过程也充满仪式感。水纹座椅呼应房间临江主题,让浮动的波纹化为稳固的装饰,承托住和家人一起分享的美好回忆。所有的东西都是精装的,包括中央空调,户式中央空调等等。对于家庭来讲,这种生活品质将会大大提升他们的生活享受,实际上和独栋别墅是一致的生活享受。主卧衣帽间与书房通铺深色实木地板,为整个空间奠定了静谧的色感,营造一种回归纯粹与本真的氛围。纵观杭州,有两条发展轴,从西湖时代走向钱江时代的轴,以及以钱江为依托的拥江发展轴。亚奥城视界超高层就位于这两个轴线的焦点上,是
这条恢弘的钱塘江不仅承载了历史的积淀与荣耀,更肩负未来发展的重责,它既是城市精神的象征,更是城市靓丽的面孔。这里星垂平原阔,月涌大江流,它是杭州城市地标建筑的精神性源头。作为钱塘江畔亚奥板块前沿阵地,亚奥城与杭州共鉴时代进阶,启幕未来盛世华章。
全球前50位顶尖设计师之一,连续三次荣膺室内设计奥斯卡奖室内设计上,采用LDK一体化设计,带来极具阔正的空间尺度,并以大面米灰、暖灰为主基调,营造出高级优雅的氛围感,同时通过吊灯、艺术玻璃、酒柜等软装艺术作点缀,将艺术与生活融合,简奢中透出时尚前卫,营造出私密、温暖、现代化、国际化及独特的鼎级舒居体验。
●阔绰层高:约3.95米奢阔层高,厚载一城荣耀,匹配高净值人士的气度与胸襟。

kaiyun官方网站 开云平台 />
甄选GAGGENAU、Dornbracht、LAUFEN、kaldewei等全球尖端品牌,品质匠奢样板,荟聚鎏金艺术,领驭时代审美,重构杭州大平层的空间想象。


特别声明:以上内容(如有图片或视频亦包括在内)为自媒体平台“网易号”用户上传并发布,本平台仅提供信息存储服务。
上海一男子卖4根金条6张银行卡被封!河南警方最新回应:将在10月25号解冻
李在明拒绝出席中国阅兵,签抗中协议!王毅送了韩国一句线岁女儿一路跪拜祈福,与乐嘉婚姻仅维系3年……
河南贫困生686分考入北大医学部英语专业!名校天坑专业专坑高分寒门学子
澳大利亚三分26投15中 36分大胜韩国 李贤重16投3中&三分12中2
《编码物候》展览开幕 北京时代美术馆以科学艺术解读数字与生物交织的宇宙节律