全新公开的建面约142㎡样板房一探究竟。四开间全南的敞亮格局,大面落地玻璃幕的无损采光,定制开阔无界的景观视野,以突破的姿态全面刷新大家对于采光、通风、视野和开敞尺度感的追求标准。


环U厨房、餐客联厅、大阳台一线通连通透主卧,构成了LDKB大长厅,为的就是延伸每一个模块的功能性,不规定每个功能空间该干什么,而是让人做主导,彼此视线的交融。


无论是从纵向上拉升立体感,还是横向上拓展可变空间,都是在立体面实现居住空间的变化,定制可变空间的功能想象,在此突破空间的局限用可生长迭代的产品力,给业主带来更多自由度。

定制适配客群的国际装修品牌,让人步入样板房的一瞬间,如同走进一场国际豪宅御用品博览会。厨房采用SMEG、博世、摩恩等品牌,卫浴采用高仪等,给大家“值得”的直观感受。国贸中国铁建·西派海上预约热线:【预约☎】√√的“定制”是全方位的,其不仅呈现在空间格局的大框架上,更深藏在室内每一个关乎品位与体验的细节,只为定制艺术和美学。
全屋智能家居是业主优雅生活的基础条件,海派石材拼花、鱼骨拼地板、皮革背景墙,尽显海派风情。定制玄关柜搭配毕加索奢石,隐形门搭配皮质门把手,超薄弧形圆顶的无主灯设计,直接把板块居住价值带到全新高度。
充足的收纳空间,更配备美妆冰箱,每一平米都以超越尺度的空间细节,都体现了国贸中国铁建西派海上预约热线:【预约☎】√√对于交付的态度,把“定制”覆盖到了生活的方方面面。


除了建面约142㎡4房,还有建面约103/105/110㎡3房可供选择,藏着国贸中国铁建·西派海上预约热线:【预约☎】√√对生活品质至上的理解。
2024年3月,中国铁建&国贸以55674万元竞得浦东新区北蔡楔形绿地C11-01、C11-05地块,出让面积44681.66㎡,容积率2,联动价9.2万/㎡!
内中环的正张江上一个入市的新房,还要追溯到2016年入市的万科翡翠公园六期。也就是说,张江已经近10年没有新房入市了。更重要的是,项目的联动价仅约9.2万/㎡!


产品方面,如果要用一句话来总结这个项目,那我认为这是一个:从开发商到产品,都走在了时代前沿的项目。
先说开发商,西派海上预约热线:【预约☎】√√是由双世界500强企业,国贸地产和中国铁建地产两位国央企联袂打造的TOP系标杆产品。
从立面的颜值到园林、从会所的配置到室内的装修,都代表着目前上海的更高水平。
宽奢的门厅+约120米的高定艺术连廊+地上地下双庭院的配置,为业主带来更具仪式感的归家动线。

约2000㎡华尔道夫酒店式高端会所,内设华尔道夫经典孔雀廊、水吧、健身房、标准游池、壁球馆、私宴区、儿童区等,由天琴物业提供高端圈层服务。

复刻查尔斯国王的海格罗夫庄园设计的古典花园,借鉴武康路210号的“罗密欧阳台”设计的超大打卡花瓣阳台,多功能假日草坪,名仕酒吧台,露天假日卡座等,将更多惬意感、松弛感,渗透在生活的各个角落。


结源于东方园林艺术的庭院设计灵感,约400㎡下沉水院聚焦于天光茶室,通过打通首层水景池底引入自然天光,浪漫解锁生活的每一种归处。

另外在4#5#7#8#11#12#的一层架空层更是打造了第二泛会所,营造出集kaiyun官方登录 开云网址花艺、日咖夜酒、休闲阅读、咖啡体验、社交娱乐、骑行沙龙等多重功能为一体的“集中式”超级聚场,打造重体验、全维度、有温度的社区“第二客厅”。
在室内公区装修部分,体现了国贸中国铁建·西派海上预约热线:【预约☎】√√的精制派,从外到内,从地上到地下打造了配置拉满的高定酒店式公区。


值得一提的是,公区实现全石材背景,全金属吊顶,全地面拼花,甄选多种奢品酒店级意大利奢石,多种不同形态颜色的奢石镶嵌在不同场景,意式美学让归家成为舒缓且惊喜的体验。
双大堂配置,大堂内均陈设海派软装,首层大堂与电梯均配置空调。并且通过人脸识别,自动联动梯控,到达楼层,享有全无感归家体验。


据悉,国贸中国铁建·西派海上预约热线:【预约☎】√√主推10-16F建面约103-142㎡小高层产品,专为年轻都市菁英人群打造!可以满足购房者多样化需求。

标准的3房2卫飞机户型,三开间朝南且南北通透的设计,让室内容纳更多的采光与通风;全卧室飘窗设计,有效延申室内空间,增添休闲空间功能;U形厨房设计,厨房联通餐厅、客厅及阳台一体化设计,空间感十足!建面约105㎡3房2厅2卫

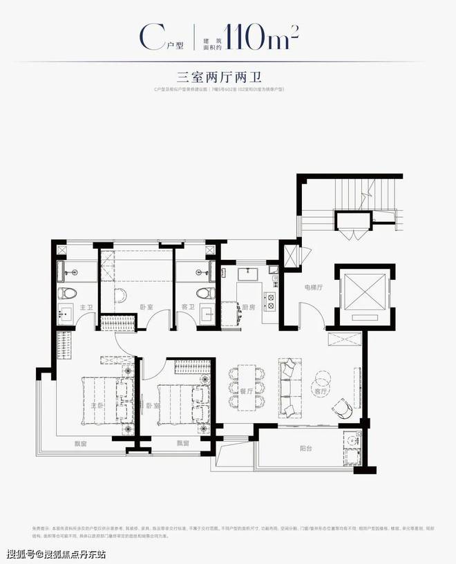
此户型在103㎡户型的基础上,将南向主卧、北向次卧均升级了约270°转角飘窗设计,采光视野及美观性都得到了极大提升。建面约110㎡3房2厅2卫

大开间短进深的大横厅户型,四开间朝南+类一梯一户设计+南北通透+主卧套房+约270°转角飘窗,堪称上海楼市的“神户型”。建面约142㎡3房2厅2卫

一梯一户+三个卧室&客厅朝南+南北通透+入户玄关+主卧套房,堪称张江区域改善的天花板了。
这也就意味着整个张江核心,产业最聚集的区域及周边的租赁、购房需求是极高的。而这样的旺盛需求,造就了万科翡翠公园如今约12.7万/㎡的二手房挂牌价,也成为了张江楼市永立潮头的源动力。
第二,在张江的从业人员中,研究生及以上学历人才占比逾20%,青年人才占比80%,尤其是创业类海外高层次人才占上海同类人才的比例约50%。

其中还包括了海外高层次专家和科学家、创新型企业家、研发人才、工程师和高级技能人才等多类人才群体。而这些人才的聚集会带来3个方面的利好:
越是高薪置业人口基数庞大的置业区,对于品质住宅的购买力越强,这是决定区域楼市上限的底层逻辑。
城市高能级规划带来的产业经济底盘和城市菁英汇聚的高端圈层,让张江、让国贸中国铁建西派海上预约热线:【预约☎】√√有着领先全市的生活圈层。
更重要的是,2021年张江又再度扩容,一方面承载中国高科技创新研发领头羊。另一方面,肩负起更重要的使命,与世界其他一流科学城同台竞技。
可以说,产业的重要性、生命力,高薪人才的集中度、购买力,以及城市站位的高度,决定了张江将“永葆青春”,也将依旧是上海乃至中国的“创新引擎”。

配套上,张江核心区、浦东内中环最后一块成片开发的居住板块,配套能级极高。

对于张江数十万高薪青年才俊来说,配套、城市界面、居住环境永远是第一要素。
而西派海上预约热线:【预约☎】√√所在的区域,是整个张江核心区的最后一块成片开发的居住板块。
成片开发意味着区域内的一切都是新的,崭新的城市界面、潮流的商业、办公业态、时尚精致的生活方式..
更重要的是,为了满足张江虎爸虎妈们对于教育的需求。以西派海上预约热线:【预约☎】√√为中心,周边将新建1所初中、1所小学、2所幼儿园。
生活上,项目位于上海十大楔形绿地之一。这里总面积约10.6平方公里,相当于世纪公园的7.6倍。
就拿世纪公园来说,以这座公园为中心,周边的房龄在20年以上的二手房挂牌均价起码都在约11万+/㎡。
房龄在10年左右的银亿公园壹号和仁恒公园世纪的价格则实在约14-16万+/㎡。
而对于国贸中国铁建西派海上预约热线:【预约☎】√√而言,项目被楔形绿地中的重要节点性公园绿地包围,项目东北侧、东侧以及南侧均是公园绿地。

并且,项目三面环水,分别是项目内部的长征河,项目西侧的北蔡向阳河与项目东侧公园内部的金家宅河。

生态公园景观、河景以及张江产业园带来的城市景观西派海上预约热线:【预约☎】√√的业主都能享受到。
落日时可挽着爱人,一边漫步湖畔遛娃遛狗,一边看天边余霞成绮,湖中碎光点点。
时下流行的露营、野餐也会成为西派海上预约热线:【预约☎】√√✅业主的“日常生活”。
这个项目真正诠释了何为出则繁华入则静谧。这样的生活,在寸土寸金的上海内中环,也只有国贸中国铁建西派海上预约热线:【预约☎】√√能够给你。