下班回家,我疲倦推开门,晴天的落地窗使阳台足以盛放下充盈和饱满的光线,新买的龟背和天堂鸟抽出了春天的新叶,在阳光下安静呼吸。
在后疫情时代,房企跳水央企地产率先作出降价表率的背景下,下决定在我稳定工作的城市拥有自己的一套刚需小户型,不再看房东的眼色,在家人的帮助以及公积金的加持下,商贷月供和月租几乎持平,那么拥有一套自己的资产不更香吗?
家人完完全全地把全程的决定权交给了我,从看房买房、找半包、设计方案确定、跟进落地入住,可以说完全是自己一个人,没有任何人的指挥和干涉。
因为自己是小屋的第一且唯一责任人了。装修预算的压力时刻围绕,以及以后无论装的好与坏,美与丑,你都得躺在沙发上说「害,反正都是自己装的,美还是丑究竟都得自己住。」

作为选择困难户和完美主义追求者,装修过程不乏各种令人恼火的环节,以及层出不穷开云网站 kaiyun登录入口网址的问题,还有个人审美的多重质疑。

蓝图终于变成现实。当暖气水电全部掩盖后铺上温暖的木地板、当落地窗的大玻璃膜时隔半年开荒时终于被揭下来、当沙发因为电梯太小采取人工走楼梯搬仍然搬不动必须更换款式后终于放进家里客厅、当水槽吊灯挂起来好像厨房的小月亮的种种时刻,忽然觉得这一切都值了。终于,我拥有了属于自己的家。


为了不让开发商从精装修溢价中对我进行无情剥削,「毛坯」成为理所当然的选择。毛坯是一张白纸,可以自由作画,自由发挥,一想到就兴奋。
自装:好处是成本低,但需要自己设计方案、找包工头等等但是毕竟不是干设计装修行业,一头雾水的我(连角阀都不知道是什么的我)是不可能自装。
半包:作为第一次装修的小白,选择了「设计方案 + 半包」。「半包」包含基础工程,譬如拆改,水电,防水,还包含木工吊顶,泥工贴砖,油漆墙面等各类手工(砌墙砖、水泥砂、腻子、底面漆等等)。半包相当于家的最重要的隐蔽工程和基础表面工程。主材甲供,也就是自己购买(譬如瓷砖、美缝、木地板、开关面板、门窗等等),后续软装、家具、电器当然都是自己来决定。
在美团、大众点评、小红书刷本地的装修机构,挑选了三四家口碑较好的装修公司。我一没选择当地或者全国打广告骚扰电话最多的大众装修公司,首先是宣传过多遍地开花给人造成不够专业的印象,第二是这类公司的风格案例实在流水席且不好看;二没有选择那种热门的所谓网红设计师个人工作室,因为收费相对较高,害怕徒有其表。
每家沟通的流程是一致的:设计师是第一沟通者,我把基本需求和风格和设计师交流,设计师大约会在一周内给你免费出一张平面设计图以及大概预算。
专注聊了几个专门做半包的公司。沟通几个设计师下来,多看了几个平面设计方案,心里已经差不多有家的模样了,装修预算也大概有个数。并且能看出这个设计师和你合不合,交流有没有障碍,设计师能不能听懂你的意思,「能够顺畅交流」也是后续整个装修工程中是否很重要的考量因素。
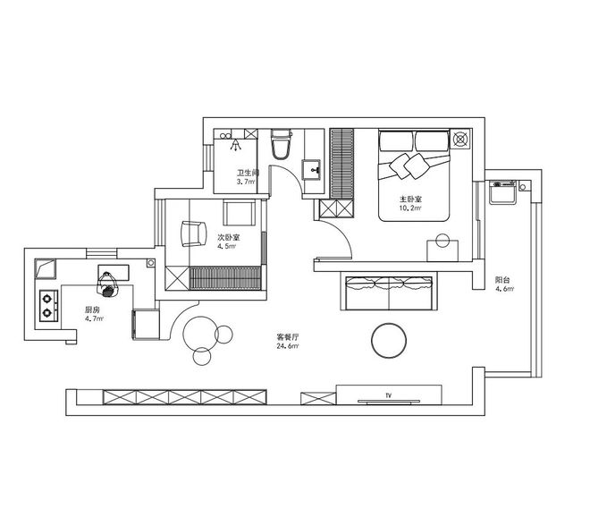
次卧:次卧靠窗做悬空书桌,书桌与衣柜和开放格一体。放置折叠 mini 沙发床,如有客房需要,展开沙发床,可伸入书桌下方。作为 i 人,宴请朋友亲人的机会不多,非常需要个人空间自我充电。最终还是为自己考虑,还是要以我个人在此办公和学习为主要功能。
餐厅:转角做固定卡座(只能坐一个人),卡座固定可以省下餐椅推拉的空间。只能放圆桌,80-90cm 直径,平时可以做 3-4 人。
洗手间:为了扩大空间,将卧室和洗手间的非承重墙砸了,空间往卧室推,挤出一个浴室柜的空间,还能保留下完整淋浴房。洗手间只能做单门套,因为门套会限制洗手台的深度。淋浴房能保证 900mm×1000mm 的尺寸,洗浴属于比较舒适了。(逯薇《小家越住越大》提到,淋浴房最舒适的尺寸是长方形 1200nm×900mm)
在设计图阶段,已经可以看出有很多需要注意的细节了。和设计师最终敲定了平面设计图。嘿,这就是我的小屋蓝图了。

在半包的过程中,有且仅有一次额外收费,是给施工队师傅的手工费,约 3000 元。是在签半包合同时,完全没有想到的。
贴砖阶段手工费补差价!当初为了追求风格,厨房买了「小花砖」(65mm×200mm),其他区域则一律采取了大砖(600mm×1200mm)。压根忘了合同里明确了如果铺贴瓷砖的尺寸是 800mm×800mm,不额外收取贴砖手工费,这个尺寸以外的过大、过小砖,都要补铺贴的手工费以及倒角费用,因此额外收费尤其是各项手工费要注意有无限制。

厨房我挑选了不仅是小砖,还是表面凹凸不平的釉面艺术砖。贴砖师傅一个人,光是贴这不到 5 个平方的厨房瓷砖就贴了 3 天(笑哭)。这种艺术小砖贴水平,真的是考验技术,这手工咱也干不来。
在这里补充一句,追求貌美小砖的朋友们:小砖不仅需要额外增加手工铺贴费,后续的美缝费也是很大一笔开销。如果给我重来一次,我一定不_______。
入户门开门的第一眼,是朋友们最喜欢的,也是家里最有风格的,就是我的蜂蜜厨房。麻雀虽小,五脏俱全。

关于油烟问题,使用了一个月左右,一周开火 2-4 次,有抽油烟机,油烟影响可以忽略不计。
其次更容易忽略的是燃气开户问题,许多城市地方政策要求厨房必须有门(是的,很离谱),否则不给开户或者安装便宜的一次性假门蒙混过关。幸运的是,我们小区对此并不严格,小户型几乎都做的是开放式厨房。

动线能够尽量保持:从右到左,冰箱拿菜,洗——切——炒。目前使用感受还是不错的,非常流畅,弥补了厨房比较小的遗憾。
厨房,看了很多国外案例,喜欢的风格都是采取墙腰部贴瓷砖,其他部分刷乳胶漆(包含石膏吊顶)。但还是害怕清洁的问题,以及防水防油乳胶漆的成本,最终还是选择全瓷砖,顶部仍然是铝扣板(因为真的没有人会往天上看,便宜且好维修)。

在厨房瓷砖上很下功夫,墙砖选择了小砖,橙白跳色,橙色增加食欲;地砖选择了耐脏的深色柔带纹理的大砖。当初还为小厨房画了一张草图,按草图选了瓷砖,目前也是基本实现。


墙砖上部分是白色小砖,中部橙色小砖,下部分是厂家送的杂砖(有橱柜挡着,所以杂砖看不到,省一笔钱)。
小砖同款式,保持统一性。小砖有缝隙才有美感,美缝因此选择白色是毋庸置疑。由于是釉面光亮的,美缝我用的光面「美缝剂」,环氧彩砂哑光不太合适,而且美缝剂也便宜。怕白色后期泛黄,我选择了偏灰色的美缝剂,肉眼看不出区别,给予它后期泛黄的空间。

水槽吊灯:超级正确的决定!实用和氛围感的创造者!水槽灯设计在水槽上斜前方,不会妨碍在水槽干活,照明足够,能看的很清晰。2800K的暖色温,搭配白色铝百叶,平时可以只开这一个灯,进门洗手或者临时洗杯子、蔬果的时候,感觉超级温馨。
橱柜台面高低台设计:原来租房的厨房台面统一 83cm 左右,当时也没有洗碗机,洗完一顿饭的碗之后,腰已经近乎断掉。建议尝试高低台设计!本人165cm,洗碗、切菜区设计为 90cm,炒菜区 82cm,使用感非常好,切菜不需要怎么弯腰,洗碗弯腰成都也可以接受(并且有洗碗机的加持,几乎解放双手!)
收纳上墙:空间告急,上墙节约空间的同时,可以避免堆放在台面,难清理。但是当初没有考虑到的一点是,烟道不能打孔,必须采取免钉胶上墙的方式,而我的小砖表面凹凸不平,单凭粘胶可能也无法上墙。找了好几个收纳架的店家,都说我这墙面没法免钉上墙。终于遇到一家承诺它可以,只要表面起伏不超过 3cm,于是我在涂抹完免钉胶后拿辅助贴乖乖固定了 72 小时,目前还没有掉落(希望永远不)。


需要介绍下,入户门一进门便是狭长的走廊,我定制了一排多功能柜子(深度 350cm),顶天立地一门到顶,并且包含了玄关、鞋柜、置物柜和餐边柜。


原本纠结这列柜子是否要设计换鞋凳。忽然想到换鞋凳可以恰巧在厨房对面,嘿这不巧了吗?——做饭不无聊了!做饭时,朋友们会自动落座在换鞋凳和我聊天,这不就是开放式厨房的意义吗?

餐厅开间 2.4m,减去餐边柜 350mm,还要有走动的走廊空间,餐厅几乎可以说差点不能实现。设计师想方法设计了转角的圆弧形卡座,卡座大大节约了餐椅推拉的空间。
卡座连着墙裙,成为一个整体,视觉上得以拉伸,显得更大,且大胆全部采取胡桃木色,没有显得沉重,反而中古感更浓重了。落地效果简直太好了,加上橘色餐厅吊灯的添色,这里成为了家里最出片的地方。

家里总需要一些角落摆放自己的小玩意儿,和家产生专属的联系(才不会显得像冰冷的样板房),譬如哈利波特的乐高,喜欢的歌手,两幅色彩很搭的摆画。(有人注意到阿佛鼠头上的獭獭吗;D)

墙上特地选择了黑胡桃色的置物架,保持统一性。但是放置的内容则尽量要跳色。

卡座的软垫定制时,选择了复古祖母绿,丝绒质感。和橘色吊灯绝配,中古感拉满。


确定只能放圆形餐桌后。对于餐桌的尺寸,纠结过很长时间。设计师说只能放下 80cm—90cm。
80cm 听起来也太小了,非常建议大家去宜家去现场看看尺寸。宜家餐桌区恰好有一个 80cm 的餐桌,我反复去宜家在那坐着不下 3 次,感觉就是:足够了。
坐下 4 个人吃饭绝对不成问题,来看看图吧!(当然啦,由于我有一面靠墙,所以 2-3 人是最佳状态)下图为三人食和一人食:

书房与全屋风格一致,白色和胡桃色的搭配。开放格内里是黑胡桃,书桌是黑胡桃,衣柜则是白色,小心机的跳色显得别有风味。衣柜的把手选用的是金色的椭圆,复古十足。
百叶窗也是一大亮点,专门挑选了胡桃色(偏红一点)的木百叶,整个书房的气质就提上来了。

台灯换了宜家的 FORSA 芙萨银色,适配的亮度足够,颜色有点赛博,但也没觉得突兀。
次卧最终还是以自己的学习、工作需求作为主要功能。原本计划设计为榻榻米,人坐在榻榻米上办公(简易靠背),榻榻米还可以来客时作为次卧,但后来被放弃。考虑到腰肌劳损,而且一旦坐的不舒服,就不会想要在这里久待。
本人自律性一般,学习(工作)区如果没法和生活区分开,则很可能休息也不好,学习也学不进。因此,最终还是决定需要正儿八经的「书桌 + 人体工学椅」。

预算有限,搬进来的第一个月仍然沿用出租屋时宜家买的最便宜的椅子,通过旋转可以调节高度的,但是我这把椅子怎么坐怎么歪,坐 10 分钟腰就快不行了,而且椅面太小,女生尚且都觉得小。请赶快避雷。
于是狠下心想买个好椅子,椅子真的不能图便宜。朋友的推荐下,眼光转向赫曼米勒(看到价格时,这真的是我能拥有的吗?)试过朋友的 Aeron2,真是很不错的,预算足够的可以去尝试下。但是装修完实在是没钱了,但是为了自己的腰着想,看上了 SAYL。买回来一试,嘿真香。

买的是高配版,可调节项很多,这才是人体工学的意义吧。个人没有太多人体工学椅的经验,对SAYL的体验感受有以下几点:
腰托可以上下调节,抵着腰真的很舒服(腰肌劳损患者表示这个功能最有用)。看似很简单,但这比单独的软垫靠枕(即使是可调节的凸起腰靠)要好太多。办公室买过两三个单独国产的靠腰,怎么坐都不大舒服。
扶手竟然是 4D 的,上下左右朝内朝外都可以调节。打字时调节到肘部正好的位置,让手臂可以有支撑。
靠背的角度是固定的,正常状态是微微后倾。据说这才是正确坐姿,可以减轻腿部压力,目前只要坐着端正(比如现在码文),腿部还是能感觉到释压的。顺便提一嘴,希望自己能依靠这椅子形成良好坐姿习惯。
地板轮。太丝滑了,在木地板上简直丝滑到不行,也不用担心划痕,目前也没有感觉到因此导致的不稳定。
前倾功能。有个功能可以让椅子上半部前倾大约 5 度,伏案写字的时候我会用到这个功能,有些不习惯,但是腰部确实可以得到支撑,还需要适应下。
没有颈枕。据说是 HM 都没有设计,因为初衷是专注工作而非休息,有头枕需求的可能要考虑下。个人感觉久坐了颈部还是有点酸,还是多站起来走动吧。

想要:淋浴房与洗漱区干湿分离、收纳镜柜、智能马桶、毛巾架。为了实现这些功能,浴室往卧室扩了一个镜柜的距离。
因为室内空间实在太小。设计师说:你的门打不开了,只能考虑折叠门。搜罗了一圈折叠门,大部分是「铝制型材双折叠门」,第一个缺点是型材的质感实在太差,第二个缺点是双折叠,中间有缝隙,拜托这门中间可是马桶哎(……)。
还有一个要点是,由于门内直接是浴室柜三面靠墙,只能做单门套(外面有门套,里面不做门套,直接美缝收口),否则浴室柜深度要缩减。

后来无意中刷到松下住空间,有这样叫「三七折叠门」的东西,和其他房门材质一样免漆或者烤漆木门,这样质感就好了,还能保持统一性。
做这种折叠门的店家以及安装的师傅还很稀缺,松下住空间和骊住可以做,其他大牌可以定制,但是价格都 7、8K - 1W+,实在劝退。
后来在淘宝找到一家山东的日式门制造,价格友好 3K+。从测量到安装到门套收口产生了一系列问题,在武汉只有一个师傅会安装,幸好都一一顺利解决了。

镜柜三面靠墙,需要极其严丝合缝,线下找的店家非常专业,落地也很好。个人审美觉得镜柜并不丑,主要还是起到收纳的作用。瓶瓶罐罐都可以塞进镜子后面。

台面高度同厨房台面,按照公式【身高 / 2+5】,本人 165cm 计算为 87.5,但实际做到了高度 90cm,使用感很好,洗漱弯腰不会太累。
镜前灯很有必要,可以看清自己的脸,不能全部依赖头顶的射灯。色温 3500-4000K 会比较正常,也不会显得太冰冷。

空间小,物品尽量藏起来,毛巾架也采用最简单的款式。墙地砖也用的大尺寸,色彩是最不出错的奶油色
浴室储物柜,因为在马桶左侧方,第一列直接做成开放格子,拿放纸巾都很方便。
个人还是喜欢东西都藏起来,整洁干净,台面物品尽量少。目前台面利用的比较少,都收进镜柜和上墙了,希望可以保持这个状态。
淋浴房没有额外买置物架,怕显得杂乱。有2个很大的壁龛(高度 33cm+25cm,保证即使家庭装沐浴露也放得下),因为包水管本身就有厚度,直接挖壁龛就可以了,方便实用。记得留一些坡度,可以不积水哦。
因为我是一个喜欢看电视的人,电影、电视剧都更愿意投屏。没事儿的时候,也喜欢开个电视放点声音作为自然音,家里显得更有「家」的感觉。
客厅对我而言就是家的核心,是我自我充电的地方。因此客厅采用了最经典的「沙发+电视机」的组合。其余都靠软装来添彩。

朝南的阳台光线充足,白天在客厅也很有幸福感。电视柜直接网购的成品柜子,黄杨木。和胡桃色的家非常搭配,不锈钢腿显得更活泼。地毯是增加软装质感的关键,一定要挑一个美丽的地毯,尺寸也要够大!

客厅也是色彩最丰富的地方,逐渐丰富的绿植,和五颜六色的小家具。目前还开云网站 kaiyun登录入口网址没有买茶几,没有茶几就显得更宽松一些,但是实用性就缺乏了。
可见有个好的设计图对于装修落地是有多重要。70% 以上还原了,框架基本没变,软装和风格上在后期根据自己喜好,逐渐从日式原木转变为中古。
我的感受还是,不要给自己风格下定义,多看些案例,往自己喜欢的装就完事儿了。不能全听设计师的,也不能不听设计师的。
七七八八把家里写的差不多了,也算是给自己大半年的努力一个总结和交代。不知不觉才发现自己为小家做了那么多事情,每天都在生气和生气的路上,把问题一个一个解决,虽然累,但成就满满。

家的每个角落都有自己的心血和思考,每个角落都看着它从毛坯水电到腻子覆盖到乳胶漆再到软装搭配,再看着它们从开荒中一一被揭开,就好像开盲盒一样的令人兴奋。
新买的海芋和龟背,都在春末生根发新芽,家里又添新画了。朋友们来了一波又一波暖房,家终于有了家的模样和气息。房子经过自己满满的爱的浇灌,终于成为了属于我的家。
一个永远可以返航的港湾,一个可以任由自己天马行空的地方也是随时可以休憩的居所。

特别声明:以上内容(如有图片或视频亦包括在内)为自媒体平台“网易号”用户上传并发布,本平台仅提供信息存储服务。
天冷了,要多吃此肉,比牛羊肉便宜,比猪肉还健康,营养好吃还省钱,好处多多
证监会雷霆出击!“85后”、“90后”两牛散操纵股价被罚没3.35亿元,涉及这只股票
泽连斯基称俄罗斯再次升级战争,拒绝“乌使用西方远程武器”的指责:早已开始使用这些武器
15点,央视CCTV5+直播:林诗栋+王楚钦围剿张本智和 日乒高兴早了
哈登22+6+9 福克斯29+7+7 小萨24+15 快船力擒国王迎4连胜
112-108!维金斯30分,库里19+7+7,勇士险胜鹈鹕坐稳西部第一
华擎锐炫 B580 桌面显卡曝光:2.8GHz GPU,双 8-pin 电源接口
消息称英伟达 RTX 5090 显卡 GPU 尺寸比 RTX 4090 的大 22%