温馨提示:本项目采用预约制,过来营销中心参观样板间请记得提前拨打开发商楼盘售楼处400热线电话在线预约,感谢您的配合!

一条珠江,成就了千年商都的繁华迤逦,从前航道,到后航道,珠水浸润之处,皆是城市繁华。临江而居,早已成为顶级圈层身份的象征。江景房,亦在不断刷新广州楼价天花板!


·广州“十四五”规划已明确白鹅潭定位,对标纽约、芝加哥、东京等世界级中央商务区,全力打造广州中心城区西翼CBD,面向湾区辐射珠三角、联动港澳、引领广佛。
·跻身广州五大世界级商圈,华润万象城、太古里、星河COCOPark等高端商业纷纷登陆。
· 广州美术馆、广东非物质文化遗产展示中心,广东文学馆,三馆合一,打造大湾区文化地标。
·沿江总部经济带地标林立,国家呼吸医学中心、广州国际医药港,白鹅潭金融综合体、鹅潭一号总部、繁华的都市生活在这里就可以轻松拥有。

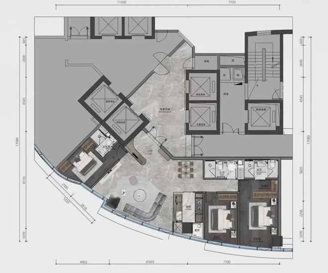
从面积段来看,产品十分符合项目的望江豪宅调性,均是大平层设计。户型品鉴约405平A户型一梯一户的设计,进门为独立电梯厅和走廊,连接洗衣房,洗衣房与独立的保姆房和司机房连通。大门做了隔断,明确了保姆、司机和主人的活动范围。门厅一侧是L型的鞋帽间,个人认为可以采用软装做一个小型储物间,门厅两侧分布了带独立卫浴的次卧以及主套,主套分布了步入式衣帽间以及的双盥洗台、浴缸、独立淋浴,而靠近鞋帽间的次卧也有浴缸以及独立卫浴。L型的厨房配了中岛,连接餐厅,餐厅一侧还有西餐吧台,客厅的设计像一艘游轮的船头,可以观看270度的江景。值得一提的是这个户型还配有雪茄房并带独立的公卫,每条动线都互不打扰,可以用作大平层之外还可以打造成私人的会所。

约183平B户型这个户型同样设计了专属的电梯,进门为玄关,餐客厨做到了一体化,厨房带岛台,客厅一侧还划分了独立的办公空间。主套和次卧分布在不同的两侧,形成独立的动线。主套和次卧都带有步入式衣帽间,以及独立洗漱空间,主套的浴缸被设在了靠近落地玻璃窗的一侧,可看江景。

约181平C户型入门即为玄关,厨房为双I型设计,厨房可以设计成开放式。客卧分布在客厅一侧,带独立卫浴,和主人生活动线互不打扰,主套带三分离的独立卫浴以及衣帽间。

约356平D户型这个户型的设计虽然也是类似于游轮船头,但与A户型还是有点区别。保姆房和司机房在玄关的一侧,带独立的洗漱空间,保姆和司机和主人的动线互不打扰。餐厅和厨房形成餐厨一体,厨房带岛台,客厅两侧分着红酒雪茄吧以及收藏室。客卧在餐厅的一侧,紧靠进门的过道,带独立卫浴,和主人的生活动线分离。主套带浴缸以及独立洗浴空间、步入式衣帽间,主套(包括主卫)的观景做到了270的无死角景观面。


白天鹅壹号售楼处电话:楼盘开盘、交房时间、房价、户型、学区、怎么样、楼盘详kaiyun 开云官方入口情、价格、售楼处地址、销售中心电话、楼盘地址、户型图、交通、备案价、最新优惠、营销中心电话、得房率、周边配套等详情咨询
1、文章图片来源于微信搜索或百度搜索引擎,我方非相关图片的原创作者,也不对相关图片及内容享有任何权利。
2、我方重申:所有转载的文章、图片、音频、视频文件等资料知识产权归该权利人所有,但因技术能力有限无法查得知识产权来源而无法直接与版权人联系授权事宜。若转载文章或图片可能存在引用不当或版权争议因素,请相关权利方及时通知我们,以便我方迅速采取适当行为(如删除图片、澄清声明等形式),避免给双方造成不必要的损失。
3、本宣传资料对项目周边幼儿园、学校等教育资源的介绍旨在提供相关信息,并不意味着我方对就学安排作出承诺。教育资源的名称、办学性质、办学规模、学位设置、开学(班)时间、招生条件、收费标准及招生区域存在调整的可能,应以政府教育主管部门及办学方颁布的政策规定为准。