您当前使用的浏览器版本过低,可能存在安全风险,建议升级浏览器,或者用以下浏览器浏览
(已认证)欢迎致电咨询预约看房优惠信息,郑重承诺:开发商旗下销售团队全程营销策划,房源信息真实有效!

万科·朗拾湖著,择址“城东之眼”金沙湖CBD,直距湖岸仅约200米,三面环水,推窗即是270°滨水诗意(部分)。当微风穿过椰林,在湖面上泛起耀眼的金波,与金色的沙滩融为一体,仿佛瞬间穿越到三亚。
万科·朗拾湖著东至幸福河绿带、南至松华路、西至玉湖街、北至瑞华路地块,户型139-180平方米。项目位于望金沙西侧,位置绝佳,地铁站大约400米,周边还有双天街、印象城、银泰城等综合体加持。产品上,这是万科“拾”系产品在杭州的首发双子星之一。


万科·朗拾湖著, 坐拥12年一站式优教“书包”,代建9班制幼儿园,一街之隔18班小学(规划),直距约600米文海湖畔中学(在建),2023年文海教育集团重高录取率33.12%,优高录取率70.04%,加之下沙高教园浓厚人文打底,让孩子的成长之路,满载希望。

拾系的择址观是在高能城市的繁华板块,打造都市中的自然岛屿,这次杭州的双子项目旁也都有水。万科提取了湄南河四季酒店的精髓,将精致的外立面、仪式感的门头、静谧深邃的落客庭院,这三样标志性符合组合起来,形成浓烈的风格辨识度,成为在钢筋水泥之间发光的美学灯塔。

金沙湖旁的朗拾湖著,如同闹市之间一座松弛的岛。三面河景,一面望湖,香槟金线条的“画框”之内,则是象牙白和星空灰铝板的组合,更有轻盈感,与灵动的水景呼应。当你在朗拾湖著看湖上的风景,朗拾湖著也将成为湖上的人眼中的风景。

在杭州万科近年来的代表作品古翠隐秀,学习盒子是最受业主欢迎的空间之一,近年来也被复制到很多项目中,而到了拾系双子,盒子则再次进行了迭代。
全架空层的设计下,每个盒子并不是一个个独立封闭的空间,而是彻底打破空间界限,将盒子、伴盒、景观花园相融合,形成“渐变”的功能区。

搭配静谧社交的静心庭院、水榭林间、栖心林径、滨河长廊,以逐渐放松的“门-厅-堂”归家体验归家就是度假的开始。从第一眼就震撼的约32米宽、6.4米高宝门廊,到营造四季花厅的落客庭院、再到约200㎡社区礼仪大堂。
勾勒由微风绿屿、冥想花园、愈心花林组成的「林间谧庭」,抬眸望去,随风摇曳的草木,围合的树篱,平抚内心的水系,让人跳脱出日复一日的机械生活,重拾自然的疗愈。园区里还会有童玩伴盒 & 童玩场地 & 植物认知园&静心庭院&水榭林间&学习盒子&健身盒子等景观,每个年龄段人群,都能够在丰富的景观中找到自己理想的生活状态。
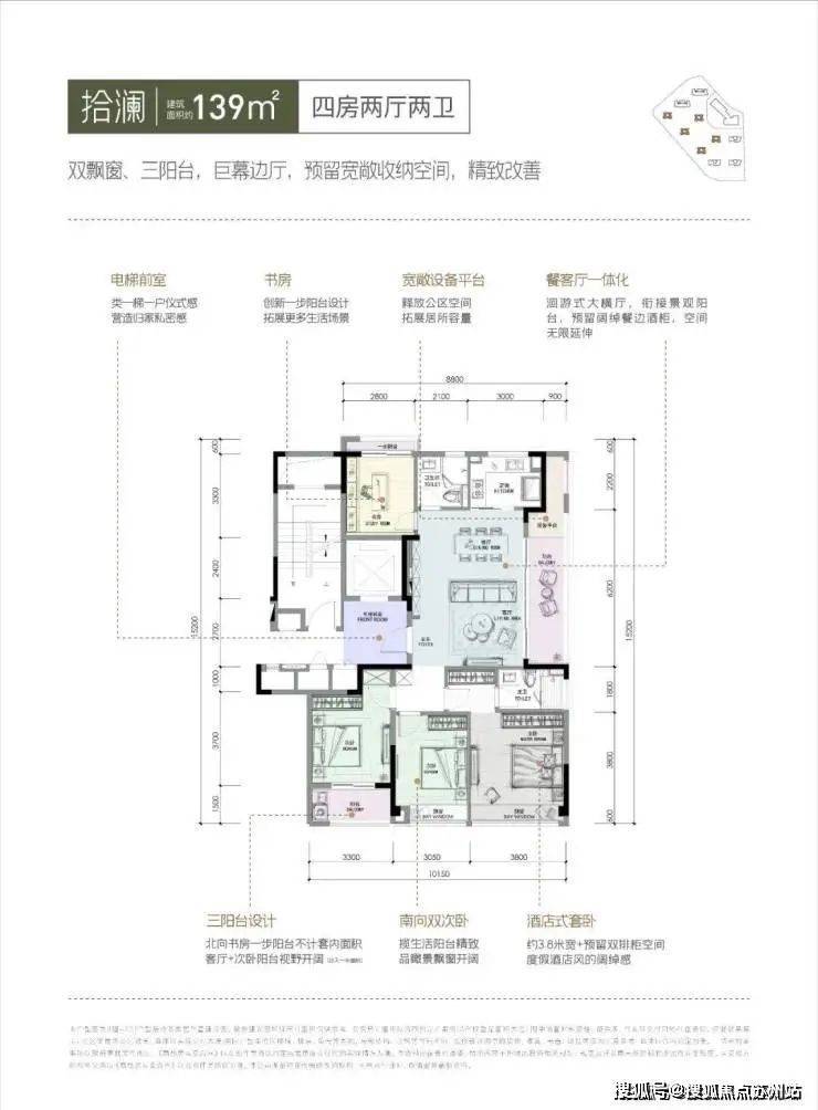
作为此次首开面积最小的房源,也有建面约139㎡,纯粹圈层改善,罕见的南北三阳台设计,餐客边厅与观景大阳台相连,三卧朝南,一面是河景,一面是小区中央景观,首开楼幢位置极佳;全屋精收纳、强功能,从客厅储藏柜,到次卧门后隐藏空间,再到主卧双排柜格局,使用率爆棚。


【万科朗拾湖著】售楼处电话:【营销中心热线㎡洄游式大方厅,餐厅可延伸岛台设计,约6米开间客厅与约9.2米双联阳台衔接,形成以奢雅自在为体验的全新家庭公区,是传统客厅无法比拟的。除此之外,独立入户玄关、干湿分离卫浴、主卧套房、宽U厨房,细节惊喜拉满。

客餐厅设计成一个巨大的广角L厅,采光面达到约14米,金沙湖景和城市景观尽收眼底,洗晒阳台则放在了卧室。客餐厅拥有最好的景观视野,成为集休闲、聚餐、观景于一体的家庭活力中心。它的独特亮点在于充分利用设备平台面积,设计可步出空间,助力拥有南北双阳台,为家政收纳预留空间。

面约185㎡:创新玄关“800库”收纳,让家越住越大,婴儿车、行李箱、露营装备等大件物品统统塞进;LDKG一体化设计,双向约16米采光,与270°超广角阳台相连,推窗瞰湖,生活质感超乎想象;约6.1m开间酒店式行政主卧,配置大飘窗、约9㎡衣帽间、南向卫浴,无疑是顶流大宅中的“爆款”。
高端住宅的价值,一大半在窗外,而建面约185㎡的双厅独占双面采光,拥有270°观景视野,L型环幕阳台+长飘窗,舒适度远胜南北对流,打造成为超广角“观景舱”,置身其中,将室外湖景一览无余;双套房设计,其中约6.1m开间超级主卧,舒适度堪比星级酒店套房,连卫浴间都是朝南。

该区域杭州限价4万左右板块配套最醇熟区域,【轨道交通】地铁1号线米,【地面交通】德胜快速路、钱塘快速路。【万科朗拾湖著】售楼处电线公里范围金沙龙湖天街、吾角天街、金沙印象城、下沙银泰,【景观配套】金沙湖直线米。
【教育配套】万科代建9班制幼儿园、规划18班小学、文海湖畔学校【万科朗拾湖著】售楼处电话:【营销中心热线】
售楼处位置☎【营销中心】✔✔✔如有问题欢迎来电咨询,专业销售一对一热情服务,让您用专业眼光去买房。
【房价特价信息丨详细解答丨在售户型图丨项目介绍丨在售房源丨周边配套】➤VIP贵宾置业〢温馨提示:提前预约来电看房尊享售楼处内部优惠折扣!
本电话为开发商提供线上预约售楼电话,楼盘项目全面介绍(交房时间丨楼盘详情丨房价优惠折扣丨售楼处电话丨最新消息丨最新详情丨周边配套丨学区配置丨一房一价表丨高层户型丨样板间丨地铁口地址丨区域板块丨楼盘百科丨苏州新房丨认筹状况丨房型多样丨平面图丨高层洋房合院别墅丨户型图丨在售折扣丨认筹时间丨商圈配套丨房价优惠丨交付时间丨别墅户型丨地铁口丨最新进展详情!
按照区域发展和产业导向,凡在沪缴纳职工社会保险或个人所得税满3年及以上、且在本市无住房,与青浦区用人单位签订2年及以上劳动(聘用)合同且工作满1年的非沪籍人才,并同时符合以下单位条件之一、个人条件之一的,可在青浦新城区域范围内购买1套住房,同时购房资格由居民家庭调整为个人。
3.取得国家三级职业资格(高级工)及以上证书的高技能人才,工种与证书相符,且符合单位主导产业或行业(单位提供证明);
4.最近3年内累计24个月在本市缴纳职工社会保险基数大于等于本市上年度职工社会平均工资2倍;
6.青浦区经济社会发展紧缺急需或为青浦区经济社会发展做出特殊贡献的其他人才。需由用人单位提出、行业主管部门推荐并经区委人才办审核认定。
其中,符合个人条件5-6的人才实行白名单制,不受单位条件以及工作年限、劳动(聘用)合同年限等前置条件的限制。

人才购房区域总面积约68.9平方公里。范围设定:北至大叶公路,东至浦星公路,南至上海绕城高速,西至沪杭公路-南竹港;北至芝泽路,东至沪杭公路改线,南至八字桥路附近,西至地灵路。
按照奉贤新城区域发展和产业导向,与用工单位签订二年及以上劳动(聘用)合同且在本单位工作满一年、按规定在沪缴纳职工社会保险或个人所得税满3年及以上、在本市无住房的非沪籍人才,同时符合以下单位条件之一、个人条件之一,可购买奉贤新城住房1套,同时购房资格由居民家庭调整为个人。
1、符合奉贤新城产业发展导向,工商注册kaiyun官方网站 开云平台地、税收户管地均在奉贤新城,一年内未出现重大违反法律法规等情形的企业;
2、奉贤新城范围内机关事业单位、科研院所、社会组织等对奉贤新城经济社会发展有重要支撑的机构;
3、符合奉贤新城产业发展导向,工商注册地、税收户管地均在奉贤新城产业协同区园区,一年内未出现重大违反法律法规等情形的企业。
3、取得国家三级及以上职业资格(高级工)证书,工作岗位与资格证书相符的高技能人才;
4、最近3年内累计24个月在本市缴纳职工社会保险费基数大于等于本市上年度职工社会平均工资2倍的人才;
6、入选市级及以上人才计划或具有相当层次的并纳入区委人才办管理服务的人才。
符合个人条件5-6的人才实行清单制,不受单位以及新城工作年限、劳动(聘用)合同年限等前置条件限制。
【项目基本信息】:杭州钱塘万科朗拾湖著项目售楼处电线方和127方。 【开发商】:万科 【占地面积】:28328.3平方米,建筑面积98512.5平方米
《杭州钱塘万科朗拾湖著售楼处电话/地址:(预约热线)✔✔✔》项目位于望金沙西侧,距金沙湖CBD仅约200米,是万科在杭州的首发双子星之一。项目内拥12年一站式优教“书包”,代建9班制幼儿园,社区内设有健身房、游泳池等设施,打造高品质的生活
杭州赞成汀南学仕府售楼处电线小时电话-楼盘详情-地址-小区环境
杭州临平汀南学仕府售楼处电话/地址:(预约热线)✔✔✔、地址及营销中心信息,楼盘面积段、精装修交付及内部优惠折扣。项目位置优越,学区环绕,交通便捷,是杭州临平核心区域的理想选择。
杭州汀南学仕府售楼处-赞成汀南学仕府(2024)首页网站/价格/户型/容积率
杭州临平「赞成汀南学仕府」售楼处电话/地址:预约热线,看房专线。楼盘信息:项目位置优越,学区环抱。周边配套完善,生活便利。精装修交付,物超所值。适合自住及有孩子的家庭。
宝业青春里-上海(宝业青春里)楼盘详情-2024房价-户型-容积率-小区环境
保利姑苏臻悦(2024保利姑苏臻悦)首页网站-保利姑苏臻悦楼盘详情-户型配套
江苏金鸡湖精装新房 苏州新鸿基环贸广场ICC售楼部电话-价格-地址在售户型
苏州双湖 苏州绿城玫瑰园最新动态曝光,最大850㎡!9月开放样板间!提前预约
紫金翡丽甲第,放风1200w起步!湖东洋房示范区月底公开!
璀璨平江如苑(2024年璀璨平江如苑)首页网站-璀璨平江如苑楼盘详情-户型配套