懋源璟岳房价特价信息丨详细解答丨优惠政策丨在售户型图丨项目介绍丨在售房源丨周边配套丨VR看房丨楼盘图丨沙盘图丨位置图丨配套图丨售楼处地址丨足不出户丨销售1V1讲解

懋源璟岳,三环内合院别墅孤品,隐于城市自然中,择址丽泽新贵之地,让别墅重归城市、重归繁华!

2013年7月,该地块出让时,懋源地产击败多家大型房企,以17.7亿元摘得夏家胡同地块,成为当时北京地王地块。

匠心巨制城市别墅低密社区。整体形制上,以中式传统住居建筑“院”为设计机理,以古典欧式建筑为框架,设计上融合了东方文化符号,同时借助西方建筑表现手法,展示现代的低密风范。

在园林规划设计上,定位于山水画幕下的东方栖隐,将中国传统园林运用更现代的手法表达,营造出“一脉传承、三重门规、四重巷境“的东方山水现代园境。

以内城别墅第一居所的定位,实现事业状态下的塔尖财富阶层的终极居住理想,打造出傲立于东方龙脊之上的“藏品级传世家宅”。


▼懋源以工匠精神专注建筑设计,传承东方文化内涵,揉和西方元素,创造独具懋源特色的建筑风格。仪式感满满的入户大门,门口双抱鼓石。
以定制化的理念,创新的手法,构建了复合kaiyun 开云官方入口型幕墙系统外立面。以干挂石材为主,局部配以变色手模砖、仿铜金属铝板、镂空雕花等精选材质。繁复的工艺工法,使整个建筑体沉稳、典雅,历久弥新。
▷懋源璟岳售楼处电话:【售楼中心】此套合院别墅也是类独栋产品,实现南北通透,三面采光观景,三环内城最顶级的别墅产品。上下五层为一栋,物理属性是上三下二层,最终实现上四下一层,双首层设计
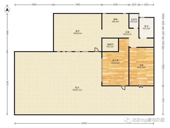
▼一层户型图:一层定位为圈层社交层,由入户庭院、玄厅、社交正厅、南侧套房和露台组成。整层约200平米,社交正厅尺度面宽7.5米,客厅层高5.1。

▼一层照片:一层定位为圈层社交层,由入户庭院、玄厅、社交正厅、南侧套房和露台组成。整层约200平米,社交正厅尺度面宽7.5米,客厅层高5.1。
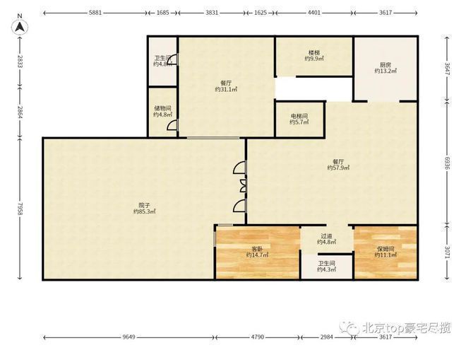
▼B1层户型图:B1层(双首层)定位为景观庭宴层-餐厨层,层高4.5米,单层面积近264.44平米(含庭院),包含景观庭院(150平米),宴会厅(50平米、南向面宽8.4米)、专业级U型中厨、高级西厨、下午茶休闲区、保姆间、家政房等组成。

▲本别墅B1层户型图▼B1层照片:B1层(双首层)定位为景观庭宴层-餐厨层,层高4.5米,单层面积近264.44平米(含庭院),包含景观庭院(150平米),宴会厅(50平米、南向面宽8.4米)、专业级U型中厨、高级西厨、下午茶休闲区、保姆间、家政房等组成。
▼B2层户型图:B2定位为圈层乐享层,由黑胶唱片区、企业主书房茶室和休闲区组成。满足商务社交的娱乐、休闲功能。整层近160平米,层高4.8米。

▼B2层照片:B2定位为圈层乐享层,由黑胶唱片区、企业主书房茶室和休闲区组成。满足商务社交的娱乐、休闲功能。整层近160平米,层高4.8米。
▼三层户型图:三层定位为主人起居层,只为主人专享的私密居住空间。整层近百平米,面宽7.9米,层高4.5米。

▼三层照片:三层定位为主人起居层,只为主人专享的私密居住空间。整层近百平米,面宽7.9米,层高4.5米。


▼二层户型图:二层定位为家人起居层,由男孩套房、女孩套房、书房(灵动功能区)组成,整层近百平米,层高3.3米。

▼二层照片:二层定位为家人起居层,由男孩套房、女孩套房、书房(灵动功能区)组成,整层近百平米,层高3.3米。
开发商最好最贵的样板间,整个社区毫无疑问最好位置的几套别墅之一,花园最大的几套别墅之一,景观视野最好的几套别墅之一,采光最好的几套别墅之一,开发商最用心装修的几套别墅之一
懋源璟岳售楼处电话:【售楼中心】开发商样板间,聘请顶级设计大师设计,有高级感,经久不衰
整个社区都是精装修交房,不用担心后期有邻居或者社区里面的其它业主装修造成的施工乱象和噪音问题
一层老人套房,带60平会客厅,二层双套房带一书房,顶层百平主卧套房,花园层米其林级别厨房和15人大餐厅,B2层私人影院、酒窖、独立车库
单层最高层高可以到4.8米,同样面积可以更有空间感,满满的豪宅既视感,独有的空间视觉享受
内城别墅,尤其是新房别墅,花园稀缺,很多7000万左右的别墅花园也就30平-50平。但是本房花园位于南向,且是集中花园,又方正,还大,足足上百平!
社区合院别墅分为南北合院,北合院院子小,而且南侧是南合院,和南合院背对着背,几乎没有什么采光,视野也只能看南合院的背面墙体。但是本房是南合院别墅,还是端户,南侧楼间距大,阳光可以撒满整个院子,也可以照到室内空间很深的地方,享受充足的阳光!
原价1.5亿,现在1亿可以卖,让价5000万!更重要的是,价格还可以谈,还可以谈,有惊喜底价,不方便说,可以来售楼处详谈!
丽泽是北京三环先规划后建设的、成规模的开发区域,吸引金融机构入驻。从项目南门出发上三环,可以快速到达这里。选择这里的客户大多也看中周边丽泽带来的升值潜力,未来高精尖人群有买房租房需要,保值能力更强
目前市面上三环以内少有的新房别墅产品仅此一个,就是懋源璟岳。社区内的产品有叠拼、合院、类独栋,给您不同类型的产品选择,在三环内享受有天有地有花园的低密度别墅生活。
社区园林一脉传承,东方的意境精髓,“三重门规”讲究一登堂门,二进院门,三入宅门的打造手法。同时打造四重巷境,中式园林,三环内假山叠水园林景观,规划竹梅、青墨、石径、花街四重景观,真正出则繁华,入则宁静!
社区内配套2000平私家会所,业主独享,足不出院即可享受游泳健身、瑜伽、私宴厅、patyroom、露天烧烤等
因为是城市别墅,处于三环以里的位置,土地价格高昂,所以私家花园不大,且不是完全的独栋别墅

②联排别墅:地上4层,地下2层结构,房本420-465㎡,使用600-650㎡,庭院50㎡
③合院别墅:地上4层,地下2层结构,房本590-620㎡,使用800㎡左右,庭院80㎡
懋源璟岳房价特价信息丨详细解答丨优惠政策丨在售户型图丨项目介绍丨在售房源丨周边配套丨VR看房丨楼盘图丨沙盘图丨位置图丨配套图丨售楼处地址丨足不出户丨销售1V1讲解
特别声明:以上内容(如有图片或视频亦包括在内)为自媒体平台“网易号”用户上传并发布,本平台仅提供信息存储服务。
守护平安再加力!山东省滨海公安局开展夏夜治安巡查宣防第二次集中统一行动
最新,8号台风“悟空”生成!浙江明kaiyun 开云官方入口天开始,气温要降到…但接下去要防着它
北大教授李玲:美国随便看一次病,要花掉上万美元!33%家庭破产,往往跟医疗支出太高有关!我们不能学他们
新消费日报 今年我国快递业务量已突破1000亿;问界新M7汽车年度累计交付突破13万台;东南亚电商平台Lazada实现盈利……
全红婵老家涌入大量游客并形成“小吃一条街”,当地:打扰不大,每天会做卫生并巡逻
江西武功山景区一游客玩漂流时不幸遇难,死者母亲称漂流过程中突遇涨水,女儿女婿1死1伤