在繁华的北京四环,一个全新的居住标杆正在崛起——壹品兴创·御璟星城·元启。这里,不仅是一个简单的居住地,更是一个融合了品质匠心、艺术奢宅与现代生活的理想之所,由央企+国企的品牌优势也为元启项目提供了强大的实力保障。中国建筑、中建三局、中建壹品以及北京兴创等知名企业的联袂打造,不仅保证了项目的品质和口碑,更让居民在购房时更加放心和安心。

项目位于南四环西红门商圈,周边配套较为成熟。交通方面,靠近京开高速、四环、五环,且有地铁4号线号南延线,公共交通便捷;商业上,周边有荟聚购物中心、万达广场、鸿坤广场、宜家、新光界商业、沃尔玛山姆会员店等;教育资源丰富,附近有多所幼儿园、中小学;医疗配套有北京南郊肿瘤医院、北京同安骨科医院等;生态方面,周边有星光生态文化休闲公园、海子公园、槐新公园、南苑公园等多个公园。

元启项目占地约4.7万㎡,地上建筑约11.76万㎡,地下建筑约6.42万㎡,精心规划了19栋楼栋,总户数达1052户。从4至15层不等的洋房、小高层,到多样化的户型面积区间(80㎡-164㎡的三居、四居),元启项目kaiyun官方登录 开云网址满足了不同家庭的需求和期待。御景星城元启售楼处地址【营销中心】

一进入元启,首先映入眼帘的是其独特的现代美学风格立面。超大玻璃立面与艺术流线完美融合,简约的线条与温馨的配色交相辉映,使得建筑在光影中展现出极致的美学品质。这种设计不仅提升了建筑的视觉效果,更增加了居住的舒适度和生活品质。

楼体最高不超过45米,容积率为2.5,属于低密度社区。外立面借鉴世界十大豪宅伦敦海德公园壹号,延续御璟星城一期现代立面并进行迭代升级,以高品质立面材料及咖色跳色植入,既契合当代审美,又有中式文化的回归。

步入园区,约3.5万方的园林景观令人眼前一亮。这里以东方新中式风格为设计灵感,打造了“两轴六景”的景观体系。一条600M的慢跑道串联起整个园区,让人在忙碌之余也能享受到运动的乐趣。而“归心”六境的设计理念,更是将自然与人文完美结合,让人们在其中感受到归家或闲时的艺术画境之旅。

设计团队从吴冠中的六幅画作中提炼意境,运用到园区中形成“两轴六景”,营造出“自在山水,人在画中游”的感觉。其中,下沉庭院模拟《瀑》,打造观水入园效果;北园核心会客厅取自《流水、人、家》;南园会客区以《松》为主题,充满生机;西北游园的主题是《莫奈故居池塘》,可在此观鱼赏花。


景观结构为五进礼遇归家,包括礼遇前场、下沉庭院、四方典藏园、自然游园、归家入户,让业主感受归家的仪式感。同时,社区内设置了户外阅读室、自然科普课堂、主题 IP 器械童玩体验、亲子互动空间、健康成长跑道等关爱孩子成长的五大模块,寓教于乐。御景星城元启售楼处地址【营销中心】
值得一提的是,元启项目还拥有一个约1000㎡的下沉会所。这是一个集社交、商业为一体的社区盒子,包括简餐、便利店等功能,为居民提供了更多元化的生活方式。同时,会所的设计也融入了吴冠中的艺术元素,如高约9米、宽约4米的景观造型《瀑》,让人在享受便捷服务的同时,也能感受到艺术的熏陶。


在户型设计上,元启项目更是匠心独运,精研客户需求,建面约80-88-99--164㎡的三居四居,从“可变空间、L型大飘窗、LDK一体化、收纳空间”等维度出发,对户型进行了迭代升级。这些设计不仅提高了空间的利用率和居住的舒适度,更让居民在居住中体验到更多的自由和便利。
首选是入门级户型80平三居,全能三房布局,客厅双面超宽观景飘窗,通透主卧赠送飘窗,U型厨房,北向儿童房及多功能房。

88平三居,南向主卧套房加客厅,均有飘窗赠送,客厅揽景飘窗,餐厨一体,独立家政空间,卫生间干湿分离。

99平三居户型,南向主卧套房,客厅270°宽目视野转角飘窗,7.4米采光面窗,开放式厨房,北向多功能双次卧,独立家政收纳间。

110平三居,入户独立玄关,南向主卧及独立卫生间,干湿分离,270°转交宽厅,南向面宽9.1米,L型厨房,独立家政间,北向两侧双次卧,中间客卫,三个房间互不干扰,私密性好。

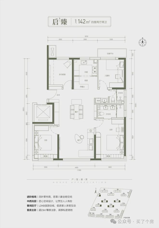
142平四居,四叶草布局,八窗全明格局,南向三面宽,客厅面宽4.4米落地窗,23平主卧套房设计,中西结合双厨。

168平四居三卫,南向约12米三面宽设计,采光视野俱佳,南向双主卧套房,独立卫生间,干湿分离,餐客厨相连,中西双厨结合。
kaiyun官方登录 开云网址pg&thumbnail=660x2147483647&quality=80&type=jpg />
而全屋精装满配的交房标准,更是让元启项目在同类产品中脱颖而出。从中央空调、新风系统等高标配置,到集成高品质全屋收纳、全屋智能化、软装多元化等细节处理,都展现出了元启项目对于居住品质的极致追求。

除了优越的硬件设施外,元启项目所处的位置也是其不可多得的优势。作为四环的稀缺地段,元启项目不仅拥有无可取代的环线价值,更享受着周边丰富的配套资源。从商业、教育、医疗到生态等方面,都为居民提供了全方位的生活保障。

总的来说,壹品兴创·御璟星城·元启以其卓越的品质、艺术的设计和完善的配套设施,成为了北京四环上的一颗璀璨明珠。这里不仅是一个高品质的居住社区,更是一个充满艺术气息和人文关怀的生活空间。对于追求高品质生活的您来说,这里无疑是一个不可多得的选择。

不仅如此,元启项目在细节处理上也下足了功夫。为了提升居住体验,项目特别引入了智能科技系统,包括智能安防、智能家居控制等,让居民的生活更加便捷、安全。同时,项目还注重绿色环保,采用了一系列节能材料和绿色技术,致力于打造低碳、环保的居住环境。

全装配置:在收纳系统完善的前提下,实现了包括中央空调、新风系统等高标配置,以及高品质全屋收纳、全屋智能化、软装多元化等“全装配置”,可实现真正的拎包入住。