北京庄园售楼处电话:,项目遵循“为别墅阅历丰富者而生”的品牌理念,为中国家族打造千米纯独墅。在项目整体打造上,董事长亲率团队,历时5年,从全球庄园、奢华酒店中汲取灵感,成就大师级珍藏别墅作品。
同级别、同纯度的顶豪别墅聚落,为同质业主打造专属社交圈。单栋使用面积达到1000㎡以上,仅百余栋楼王作品,只为中国财富家族收藏。
在空间营造上,以“黄金三法则”划分,无论是空间比例、细节打磨、风格镌刻,都实现独墅价值化。在功能配置上,设有五星级私家影厅、酒庄级私藏酒窖、4-8停车位配有加长车位的非毛坯车库。不仅如此,项目更将25米国际泳联标准短道泳池做进室内,极大地增强了别墅空间使用功能。
百年家族品牌,只为庄园定制。作为北京首创的满配非毛坯别墅,北京庄园不惜重金,全部建材原产地采购,由欧洲世家工匠筑造纯正的法意别墅。

北京庄园售楼处电话:,北京庄园毗邻京承高速11出口,据南石槽行宫旧址而建,总体规划为200余栋满配精装独栋别墅。常年交通畅行,快速通达望京、国贸等东部核心商圈。

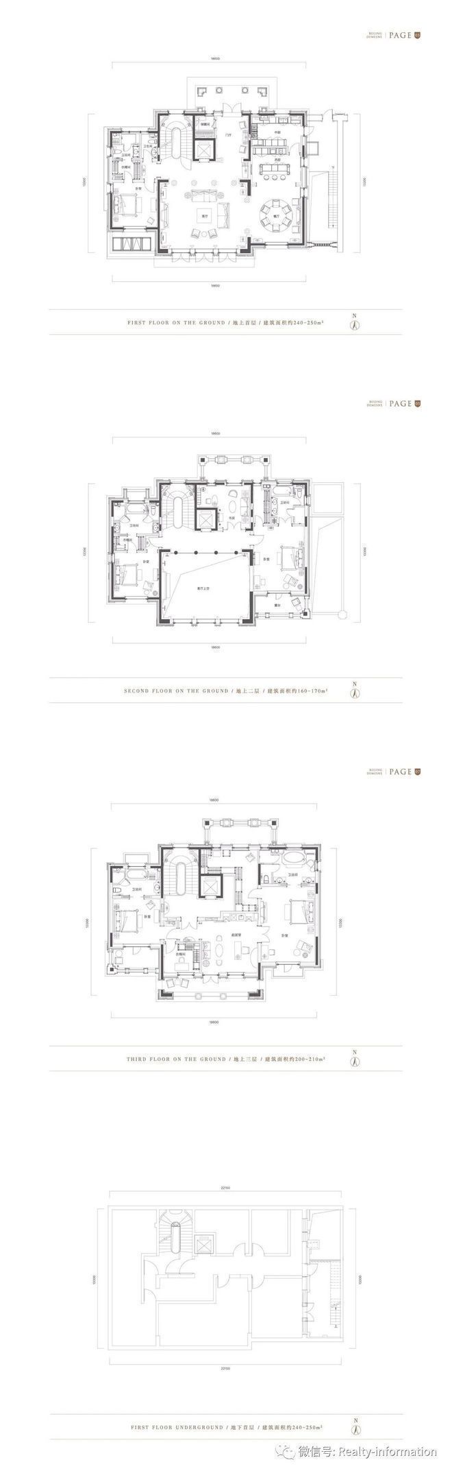
楼栋总高:5层(地上3层地下2层)意式户型无阁楼赠送,法式户型赠送阁楼150平左右
楼层高度:首层3.8米、地上二层3.5米、地上三层3.6米、阁楼2.75米、(F1层3.6米、F2层4米)


北京庄园售楼处电话:,在北京庄园,优雅和极致被物化到每一个细节之中,除了满满的诚意,还有传承的力量与温度,这也是其与市场上其他产品最大不同所在。

为了打造这样一座传世庄园,北京庄园董事长沉淀数十年的别墅居住经验,亲自率领研发团队,历经9年,足迹遍布全球,不惜成本、不惜代价,将全球最优质的选材和审美元素都纳入了庄园主人的日常生活,由此将中国豪宅推向世界顶级水准。
其室内石材,选用意大利卡拉拉山脉的特级品质的鱼肚白,与米开罗基罗的《大卫》雕塑属于同一石材,市场资源极为稀缺,每平米造价可达2万元/平米,成本是市面中普通石材的十几倍。

即便是园区地面上铺设的小料石,也是进口自意大利,如此营造手法,目前在北京尚属唯一。


作为全世界最高端的法式家具品牌,Pozzoli的每一款都是收藏品,即使是欧洲的富豪也只能在重要空间少量购置Pozzoli的产品。

北京庄园为了呈现一致性,通过深度沟通实现了Pozzoli的专项定制合作,根据北京庄园的空间尺度量身定制家具,让每款家具都成为世界上独一无二的藏品。


同时,北京庄园的所有精装配置,无论是橱柜、灯具、地毯,还是大门、门窗、栏杆,均为世界TOP级别,每件物品都师出有名,可追根溯源。

值得一提的是,与一般顶豪用的工业化的流水线产品不同,北京庄园里的大部分工艺都是匠人用巧手打磨而成。

譬如,室内大面积木作采用手扫漆工艺,这种工艺传承自法国的凡尔赛宫;入户大门由技艺纯熟的匠人纯手工锻造,表面金色的部分为24K金箔贴金工艺,中间为防弹玻璃;


主卧木作上的金箔,使用纯度为99.9%的金箔进行贴金工艺,每个熟练工匠每天大概能做5米左右……
书房,台球室,接待室,健身房,影音室等等独栋别墅的标配功能空间当然是应有尽有。

除此之外,户户标配25米标准私家泳池,配恒温设计、自动过滤系统。它的私家泳池——国内唯一 25 米长的国际短道标准泳池,泳池选用世界最顶级的马赛克品牌——SICIS。

泳池墙面上的浮雕是由 4 名法国 novidis 公司匠人历时半个月完成,精湛工艺使壁画栩栩如生,仿佛置身于 1756 年凡尔赛宫的后花园,无比绚丽而夺目。
泳池旁边还有专门的泡池,按摩室,SPA室,甚至还设置了理发室。只有真正居住在别墅中的人,才能给出这样贴心的设计,关怀到别墅生活的每一个细节之处。

北京庄园奢装满配独栋别墅,主力面积区间约1200-3300㎡,筑就中国家族世代传承的终极居所!北京庄园的诞生,定义了全球豪宅新标准!
✧比邻京承高速出口,快速抵达三环,四环,轻松掌控社交圈/生意圈/生活圈,如此矜贵土地再难复制


✧北京唯一别墅首层高度约5米,二层约4.5米,双层挑空高度超9.5米,带来全方位的奢阔之感


✧法式泰斗级设计大师PYR、国际建筑设计巨匠罗伯特·斯特恩等世界大师联袂设计,缔造中国唯一的无憾之作
✧在木作/家具/石材/灯等多个维度,实现三次高定升级,呈现举世无双的艺术珍品


✧建筑设计兼顾室内布局,5*7米卧室黄金比例,卧室全套房设计南北通透,双面采光,兼顾东窗与西窗设计,实现极致通透与最佳舒适度

✧每层可配置独开云网站 kaiyun登录入口网址立的客厅/餐厅/厨房/起居厅及卧室,多代人既合并共居,又互不干扰

✧整合顶富阶层所需的稀缺生活资源,新荣记/文华东方SPA/BHG、OLE进口超市等顶级配套
国家一级资质物业管理公司、物业服务百强企业晟邦物业,依托源自法国巴黎的金钥匙组织,为庄园业主提供全球顶级尊崇服务

自中国最美高速——京承高速11出口驶出1000米即达。京密路将按城市快速路标准升级进行改造,大幅改善交通环境,提高出行效率。此外,机场北线高速、天北路等多条道路,为项目搭建起四通八达的交通网络,出行体验快速、便捷。
会所:自有两大会所:养心会所、高端商务休闲会所区域路网升级,维多利亚湖、海德公园、庄园会所
购物:迪卡农、新世界、隆华、凯德茂、六佰本商业街等及项目自有4000平米私享洲际会所欧陆广场、荣祥广场、赛特奥特莱斯、日祥广场等。金色河畔高尔夫球会、乡村高尔夫俱乐部、香江高尔夫球中心、月河湾马术俱乐部、格林马术培训中心。
园林:约20万平海德公园、约2.2万平活水湖、奥林匹克水上公园、燕山南麓负氧离子含量约20000个/立方厘米、纯净的天然氧吧维多利亚湖,牤牛河、温榆河,一湖两河相伴。金色河畔高尔夫球会、乡村高尔夫俱乐部、高尔夫球中心、月河湾马术俱乐部、格林马术培训中心、乡村赛马场等。
蟒山国家森林公园、大杨山国家森林公园、书画山森林公园,雁栖湖、古北水镇、密云水库、怀柔度假区。
周边医院:北医三院分院、北京市望京医院、顺义区医院、顺义区第二医院、顺义区第三医院、空港医院及和睦家医院等。
周边学校:北京国际学校(ISB)、力迈、蒙特梭利、伊顿、京西学校、瑞典、英国、海嘉等国际学校。

1、目前北京唯一在售低容积率全新纯独栋法式、意式别墅,也是北京最后一个全新独栋别墅项目,为稀缺绝版资源,未来即将断供;
2、告别前二后三的花园设计,将花园真正回归到首层,确保每户花园的日照时间,户户北入户南花园,使用方方正正,单套花园300㎡至1200㎡;
3、户型设计以短进深大面宽格局(14-18㎡)且能保证居室间间做到南北通透;
4、董事长为董事长设计理念,带领百人研发团队历时5年时间,足迹遍布全球,匠心打造了全国唯一满配精装修的独栋别墅项目,一个无装修烦恼,真正意义上纯别墅居住理念;
5、北京庄园将打造全国最顶级的富豪圈层,圈层统一、业主都是拥有同样生活阅历和财富积累的人,项目配备1880平米私属会所,为业主提供(定制私宴中、西、法餐、设红酒吧、雪茄吧、精品超市、书吧、咖啡厅、sap室、休闲娱乐区);
6、每一栋别墅都是居所+会所的设计理念,地上三层为居住空间(动静分区),地下两层为娱乐休闲空间,每一栋房子均配置标准长25米的国标泳池,同时设:影音室、健身房、台球吧、雪茄吧、红酒吧,彰显业主尊贵身份;
7、北京庄园专为董事长而设计,匠心打造全国豪宅市场最顶尖产品,强强联合全球60余家传承家族联合,定制不一样的庄园,提供给未来业主奢华生活。

北京庄园售楼处电话:,项目所在的赵全营板块,作为北京城市总体规划布局的重点发展区域,也是中央别墅区延伸晋级的高端板块,可以享受中央别墅区、奥北别墅区以及望京商圈内所有配套,拥有北京低密专区的高品质价值
项目精装满配交付,可定制装修,全部为北向入户,南花园,花园在地上,花园精装交付,大面宽、短进深,大大提高了日照时间。
40年专注沉淀,七年精心打造,呈现世界级的庄园大宅,满配现房,打造独一无二的奢侈品家居,造价200万的水晶吊灯,30万的法国订制地毯,对于房子来说,都是浮云!科技住宅也只是标配,之所以是世界级,这里带您欣赏永恒的配置观感。

小伙看“出租房命案”视频惊了:我住的就是这间凶宅?律师:若房主故意隐瞒,构成欺诈
董宇辉与东方甄选“分手” !7658.55万买下“与辉同行”,开播后盈利超1.4亿元
最新!北工大650,首师大661,首医677!是谁把“三首一工”的分数推得这么高?
今日热点:2NE1首尔演唱会官宣海报;海莉不公开怀孕的原因......
与中坚力量共成长,2024建信信托艺术大奖评委会特别奖获奖艺术家凌海鹏