在追求生活品质与家居美学的今天,广东简舒家居再次以匠心独运的设计理念和精益求精的制造工艺,引领家居潮流,推出了现代休闲系列与川派艺术沙发新品。作为佛山市简舒家具有限公司的明星产品,这些沙发不仅展现......
...
近日,国家市场监管总局(国家标准委)批准了一项影响深远的新规定——《家居产品适老化设计指南》(GB/T45272—2025),该标准将于2025年9月1日起正式实施。这一新规的发布,旨在有效提高针......
近年来,复古风潮在年轻人中悄然兴起,Vintage穿搭不仅成为社交名片,中古家具也逐渐占据了他们的客厅。从包豪斯风格的餐边柜到孟菲斯风格的台灯,再到柚木曲木椅,这些曾被遗忘的设计如今被重新定义为“......
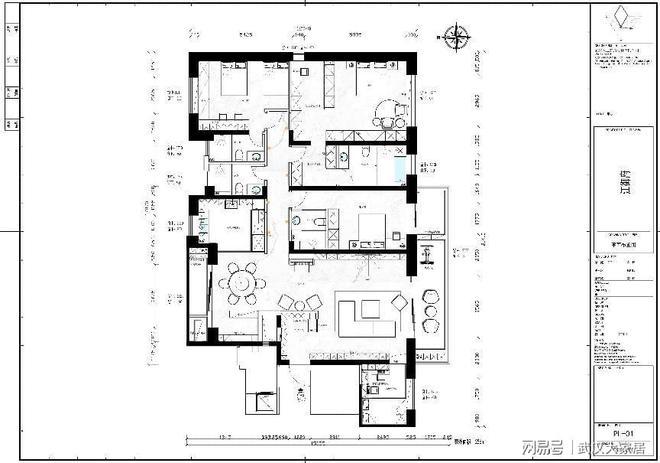
曾在英国游学,研究室内与建筑在符号上的关系,主案过千平别墅,300以上大平层,别墅设计等一系列大型室内装饰设计。 这是一套现代简约风格的三居室户型,设计理念:追求简洁、纯粹,注重空间的实用性与功......
Fornasetti与Poltrona Frau于2024年首次合作,推出全球限量发售50件的“浮生若梦(Imagine Reality Edition)” Vanity Fair XC扶手椅获得......