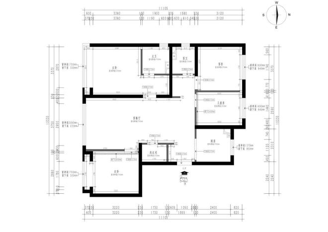
本案聚焦北京朝阳区143㎡精装四居的颠覆性改造。设计师精准洞察业主的生活状态与对居住空间的深层需求:一位崇尚独立精神与生活美学的单身女性,她对居住空间的需求极简,却渴望一个功能复合、互动交融的生活核心。设计由此破界,大胆解构原有空间框架,在重组中精准捕捉其心之所向,为她量身打造一处契合灵魂的极简生活场域。


空间以深邃的黑色、咖色与灰调贯穿,通过木、石、泥的材质交响与极致光影,在极简框架中注入艺术灵魂与人文温度,重塑一个功能交融、场景互动的品质生活空间。

入口即见设计巧思。玄关采用斯卡帕叠级手法,精选木材与冷峻岩板错落拼接,构筑富有立体韵律的艺术端景。这不仅是视觉的焦点,更巧妙融入业主姓氏首字母,赋予空间独特的个人印记。通顶的木饰面柜体流畅延伸,将强大的收纳功能完美隐藏于简洁立面之下,实现美学与实用性的高度统一。


开放的公区是设计的核心区域。温润木饰面、冷冽岩板与质朴微kaiyun官方登录 开云网址水泥,三种迥异材质在此展开深度对话。木纹流淌自然生机,岩板镌刻精致肌理,微水泥铺陈静谧基底——三者碰撞交融,共同谱写出深邃而和谐的现代空间质感。
作为视觉与气场的支点,高级感十足的黑色西厨中岛如低调的黑曜石,沉稳地锚定整个空间,成为业主暗黑美学品味的终极表达,低调却令人过目难忘。
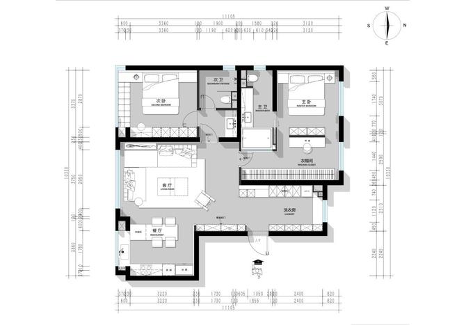
突破原始主卧局限,设计师大胆重组相邻的次卧、书房及次卫空间,打造出一个功能完整的奢华套房,全新的主卧空间完美回应业主对酒店式居住体验的向往。
尤为亮眼的是,改造释放出充裕面积,为主卫配置了宽敞的独立浴缸区,将私享的奢华感与放松氛围推向极致。


次卧延续整体空间的深邃基调,同样以黑色与原木作为主旋律,营造出沉静而温暖的休憩氛围。空间摒弃冗余装饰,强调材质本身的质感与光影变化,在简约中透露出内敛的高级感,成为一处供访客或未来灵活使用的静谧舒适之地。
本案是一次对传统户型的大胆革新,更是对单身独立女性理想居所的精准描绘。通过解构重组、材质精研与光影雕琢,设计师成功将意式极简的理性美学与业主个性化需求、人文生活温度完美融合。最终呈现的空间,不仅是功能清晰、动线流畅的物理容器,更是承载着业主心之所向、自在栖居的精神家园——一处兼具艺术格调、生活品质与情感归属的现代居所。


项目品牌:摩根智能,KD木作 ,约克空调,微沃,德利丰,汉斯格雅,杜拉维特、朗丝家居

毕业于中央美院建筑学院,创立尘一无界空间设计,致力于以人为本源的生活观念启蒙,以创新的设计风格融合,主张设计是生活品质的艺术,设计是艺术的解决问题,不止呈现独到设计,更是结合品牌,人群的定位需求,提供定制化解决方案,赋予空间独特价值。