小户型的装修一直是个让人头疼的问题,如果不注意搭配和布局,很容易使小空间显得更加拥挤不堪。但是今天为大家分享的这套装修案例,却让人大开眼界。

使用面积约为45平米的小户型,却通过简约别致的软硬装搭配和精心设计的局部区域,给人一种温暖自然的家居氛围,令人忽略了房子本身的大小。本文将带您深入了解这套装修的亮点和设计心得,希望能给决定装修小户型的您提供一些优秀的参考。


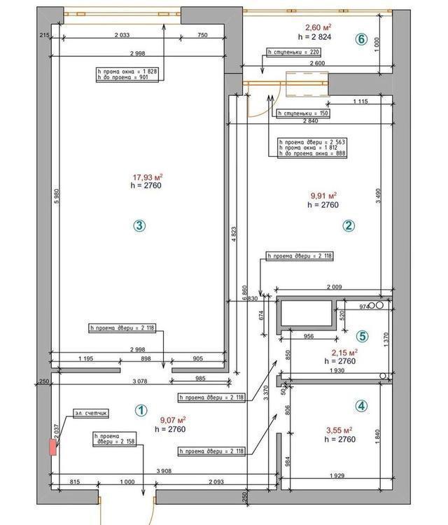
▲按照原平面图上标注的数字计算,整个房屋的使用面积约为45.2平方米。装修过程中,设计师对室内布局进行了重新布置。平面图划分得很清楚,这里就不赘述了。让我们直接看效果图。

▲这是入口区域。一进门就可以看到前面摆着一整排的衣柜。橱柜的推拉门采用镜面材质,不仅让入口区域看起来更加宽敞明亮,还可以作为一面全身镜。在大门的右手边,还有一个成品薄鞋柜,配上照片墙和精致的灯饰,看起来格外简约别致。

▲原来的卫生间只有2.15平方米,而且空间很局促,所以体验很差。设计师将其与门口的衣帽间合并后,空间就丰富多了。较低的洗衣区和充足的储物区,室内环境干净整洁,功能齐全,大大提升了用户体验。

▲厨房按照原有的空间方向设计为L型厨房,有足够的操作空间和储物空间。白色和木色的橱柜组合看起来也特别清爽自然。

▲餐厅采用了圆形的餐桌和简约的北欧风格餐椅,搭配极具设计感的三头吊灯和清新自然的装饰画,看起来温馨时尚,与方形整洁的L开云网站 kaiyun登录入口网址型厨房相结合,增添了一份轻盈活泼的感觉。如果餐桌也是长的或者方的,不仅空间上会显得局促,视觉上也会显得沉闷而硬朗。

▲阳台主要用于休闲。墙面装饰是白色文化砖和攀缘植物的组合,这恰好与窗外的景色相呼应、相融合,使得阳台空间十分自然美观,并点缀着一串串灯光,无论是白天还是夜晚看风景,都别有一番情调。

▲客厅一侧用木隔断将空间划分为客厅和卧室两个功能区。沙发的侧面做了一个满墙的衣柜,足够满足客厅和卧室的储物需求。

▲我个人非常喜欢客厅的设计。沙发背景墙装饰有木质格栅和植物墙的组合。顶灯的点缀下,显得格外清新自然,给人一种生机勃勃的感觉。

▲电视背景墙设计成电子壁炉的形式,平时开云网站 kaiyun登录入口网址可以装饰,冬天可以用来取暖。既实用又美观,不占很大的空间。整个客厅的装修效果看起来温馨自然,特别有春天的感觉。

▲隔断采用半墙与镂空木格架相结合,既有仪式感,又便于采光通风,与整体自然装饰尤为和谐。

▲卧室区域采用灰色床头背景墙,搭配灰色床头靠背,两种色调的灰色相结合,营造出和谐而有层次感的空间效果,精致而独特的捕捉梦网作为一种装饰,让卧室区域温馨、浪漫,充满生活气息。旁边的绿色椅子是一个亮点,活跃了整个空间的氛围。
这套装修虽然看起来简单,但它营造的氛围却非常温馨自然,植物墙背景墙更是特别加分。论是在客厅还是在阳台上,都很抢眼。装修的时候,也可以借鉴一下。
特别声明:以上内容(如有图片或视频亦包括在内)为自媒体平台“网易号”用户上传并发布,本平台仅提供信息存储服务。
琼瑶儿子陈中维首次评价平鑫涛:他老实憨厚,甘愿听母亲和老婆线,被新领导下调到6000,我请假一周旅游,不回工作消息,然后公司损失500万订单
6-0!曼城王者归来 5轮不败回英超前4 福登2射1传 哈兰德第17分钟
春节返乡路上太堵,本来一肚子火,看到一个小帅哥又唱歌又跳的,一瞬间开心起来了
选还是等?华为Pura 70系列新配色来袭,但Pura 80让人犹豫不决!