今年6月底,北京城建与南山地产联合以11.9亿元的底价,成功竞得位于顺义区仁和镇临河村棚户区改造kaiyun官方网站 开云平台项目中的SY00-0702-15、26地块R2二类居住用地及SY00-0702-16地块A334托幼用地。该项目的住宅销售指导价格定为每平方米44,000元。
星悦时光售楼处电话:【官网】整个项目的规划占地面积约为50,136.84平方米,计划建设内容包括住宅区和幼儿园。项目总建筑面积预计将达到约116,184.884平方米,其中地上建筑面积约为77,018.944平方米,地下建筑面积约为39,165.94平方米。此项目不仅旨在提供高品质的居住环境,同时也注重社区配套设施的完善,力求打造一个宜居宜教的生活空间。

星悦时光售楼处电话:【官网】整个项目巧妙地分为南北两个区域,北区涵盖15地块和16地块(后者为幼儿园),而南区则为26地块,共计规划了23栋7至11层的洋房住宅,整体容积率为1.6。
星悦时光售楼处电话:【官网】整个项目的大门口近65米宽的酒店式大堂超级界面,其中大门主体宽度约为50米,两侧景墙宽度合计约15米,这样的尺度和规格远远超出了普通项目的常规标准,自然而然地营造出一种高端定制的氛围,无需过多装饰便已赫然在目。此场景以设计语言向年轻人传达了一个信息:你值得拥有。

公共场域的情绪价值被成倍地融入到各个空间中:近2000平方米的庭院会所提供的专属体验,以及洄游连廊带来的高端归家仪式感,众所周知,会所是豪宅的标准配置,然而许多豪宅项目甚至连一个会所都无法提供。星悦时光却实现了这一点,这再次通过精心的设计与规划向年轻人传递出一个明确的信息:你值得。

不仅如此,在园林功能的设定上,特别强调了“社交”氛围,并且充分考虑到了不同人群的社交需求。如今的年轻人常常为自己贴上各式各样的标签——内向或外向,热情或淡然,他们希望自己的细微情绪能够得到关注。因此,星悦时光在社区园林的设计中,不仅设置了花园社交、运动社交、亲水社交和族群社交等多元化的社交场景,更是力求通过这些细致入微的安排来表达一个核心理念:真正理解并满足每一位居民的需求。

星悦时光售楼处电线平米多种户型选择,精心设计的国匠洋房,不仅满配精装修,更拥有超乎想象的空间利用效率,专为朝阳北的精英人士量身打造。值得一提的是,这里的每一户平均空间使用率均超过100%,这是一个极为亮眼的数字。
具体来说,如果按照大多数项目80%左右的实际空间使用率计算,一套建筑面积约为87平方米的三居室,其实际可用面积将比一般情况多出至少50平方米。以不超过4万元的平均售价计算,这部分额外的空间价值相当于200万元人民币。显然,实际空间使用率直接转化为购房者的实际收益,这样的经济账,一目了kaiyun官方网站 开云平台然。

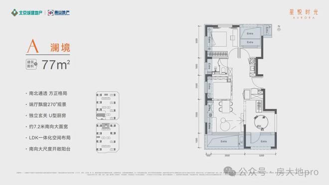
对于建筑面积约77平方米的洋房而言,星悦时光Aurora几乎将所有楼座的边户都设计成了这一户型,不仅实现了南北通透的方正布局,还提供了约270度的观景视野。在这个尺寸下能够实现三房的设计本已不多见,而星悦时光更进一步,确保了每一处细节都不需妥协。
这份精致不仅仅体现在空间的布局上,从独立的入户玄关、U型厨房,到LDK一体化的经典格局,再到南向宽敞的开放式阳台,以及南向约7.2米的面宽,每一个角落都经过精心设计。更值得一提的是,即使是在过渡空间中,也巧妙地规划了储物功能,这样的设计在以前几乎是难以想象的。该户型的实际使用面积达到了约97.11平方米,真正实现了“线年度的杰出户型之一。
而现在,仅需大约两百多万元的总价,即可拥有一套满配精装修的三房,这样的上车门槛显得尤为友好。
若按20%的首付比例计算,这样的投资门槛无疑大大增强了购房的信心。在星悦时光Aurora,梦想中的家不再是遥不可及的幻想,而是触手可及的现实。

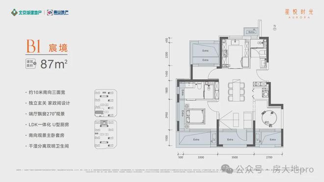
建筑面积约87平方米的双卫三居(边户),使用面积可达约110平方米,南向三面宽约10米,设计亮点包括独立玄关与家政间、端厅飘窗提供270°观景视角、LDK一体化空间搭配U型厨房,南向观景主卧套房配备干湿分离的双明卫生间。

建筑面积约87平方米的双卫三居(中户),使用面积可达约106平方米,南北通透,南向三面宽,设计特点包括独立玄关与家政间、LDK一体化空间及U型厨房、南向主卧套宽敞明亮、南向大尺度开敞阳台、干湿分离的双明卫生间。

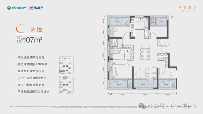
建筑面积约107平方米的大四居,使用面积高达约135平方米,作为“卷王之王”再次突破极限,展现出极强的竞争力与耐用性。南北通透,南向三面宽,设计亮点包括侧边四联飘窗提供270°观景视角、独立玄关与家政间设计、LDK一体化空间配备U型中西厨、南向主卧套宽敞明亮、干湿分离的双明卫生间设计。

对于星悦时光而言,最重要的一项发展计划是即将于明年启动的R4线建设。这将是一条设计时速高达约120公里/小时、平均站间距超过约6公里的全新轨道交通线路,它不仅将与多条现有地铁线路实现互联互通,还能直达工体、三里屯、东坝、中关村、三元桥等城市核心区域,极大提升区域的交通便利性和生活品质。

目前,北京地铁的平均时速为40公里/小时,站间距大约在1至2公里之间。相比之下,R4线的开通将显著缩短通勤时间,这条线路从临河到中德、从临空到东坝,不仅连接了机场快线号线线,还实现了与两大机场、三大交通枢纽、五大产业核心区及多个城市核心商圈的互联互通。鉴于其强大的连接能力,许多专家预测R4线将成为推动北京东北部区域发展的新产业线和生命线。

更具体地说,或许只需多乘坐几站公交车或是1到2站的地铁,就能以更低的成本获得一套理想的居住空间和一项具有高潜力的资产,这样的投资回报率无论怎样计算都是非常划算的。

依据《2035年北京及区域规划》,在创新创业发展轴与宜居宜业发展轴的核心节点上,顺义区正引领着创新产业集群示范区、首都机场临空经济示范区以及北京自贸区顺义片区三大高能级组团的发展。随着超过37000家国内外顶尖企业的陆续入驻,这片区域的城市蓝图正逐步变为现实,理想的生活画卷缓缓展开。产业带动资本,就业吸引人才,大量精英阶层的持续涌入,为该区域的发展注入了最强劲的信心与动力。

在主城心脏的热土之上,星悦时光汇聚城市精华资源,享受丰富的配套设施。项目周围聚集了祥云小镇、山姆会员店、日上免税店、上品折扣、奥特莱斯、华联等多元化消费场所,让居民尽享顺义城区的核心便利,掌握繁华生活。

周边不仅有北京友谊医院顺义院区、顺义区医院、顺义中医院、顺义妇幼医院等优质医疗资源为家庭成员的健康提供全面保障。

还紧邻府学胡同小学、顺义一中,并规划有社区幼儿园及九年一贯制学校,确保孩子能在优质的教育环境中成长。

此外,项目靠近潮白河,周边被滨河森林公园、运动主题公园、顺义公园等城市绿肺所环抱,为居民提供了一个涵养生命质量的自然环境。
特别声明:以上内容(如有图片或视频亦包括在内)为自媒体平台“网易号”用户上传并发布,本平台仅提供信息存储服务。
广西河池足协主席突然离世,前几天“秦歌第一人”也走了,此病患者越来越年轻,警惕这些“加速器”
“您更喜欢男孩还是女孩?” 山东龙口市家长调查问卷问题“太尴尬”引争议
湾区黄金枢纽之上,有灵魂与底蕴的「世界庄园」广佛新世界,打版第四代高质量住宅!
湾区黄金枢纽之上,有灵魂与底蕴的「世界庄园」广佛新世界,打版第四代高质量住宅!
雷克沙ARES RGB DDR5-6400 C30内存评测:普通玩家也有发烧级享受