【卓越闽泰·云奕府I二期星奕府 】面积85-110㎡臻智美宅3-4房 纯住宅(精装交付),自带2986㎡社区底商!一期25年6月(部分未开盘交楼未定)/二期25年底/26年6月!
卓越闽泰·云奕府(二期卓越星奕府)总建面约25万㎡奢居大城——奕式作品入席空港新城的进阶之作,对接大前海,融合发展,满足片区规划人口的居住需求,承袭卓越人居理念及高阶品质,精研空间设计,把控家装品质,配备六大奕式臻奢配置,构筑奕趣生活场景等,对细节严苛打磨,迭代人居体验,完成立面-公区-室内-服务4重生活云图,敬献智慧人居生活范本。
卓越闽泰·云奕府(星奕府)售楼处电话/预约热线:(官方) 中介勿扰温馨提示:过来本楼盘营销中心现场参观样板间请记得提前拨打400热线预约:
卓越闽泰·云奕府项目位于宝安航城街道,共分为两期开发,一期卓越闽泰云奕府(已经售罄,二期卓越星奕府。主力户型建面约为85㎡3房1卫、94㎡3房2卫、96㎡3房2卫、110㎡4房2卫,总价430万起,精装交付)
卓越星奕府总建筑面积59707.23㎡,计容建面34145.59㎡,其中住宅31068㎡、商业259㎡以及各项公共配套设施,项目由4栋建筑主体组成,分为1/2/3/4栋,预计先推3/4栋房源,约有330套房源,容积率4.0,机动车位710个。

二期项目由2/3/4栋建筑主体组成,建设用地开云网站 kaiyun登录入口网址面积24263.16㎡,总建面83951.89㎡,计容建面43999.49㎡,其中高层建面41029㎡,一期并无商业配套,总房源450户,机动车位1080个,均为地下车位,容积率3.89。(深圳宝安卓越闽泰·云奕府二期(星奕府)售楼处官方电话:)

最新消息:(卓越星奕府)2023年8月底加推175套房源,其中住宅167套住宅,位于2栋,从目前住建局的备案公示来看,已有22套房源备案,约占13%。
此次为二期第三批房源,主力户型建面约为85㎡3房1卫、94㎡3房2卫、96㎡3房2卫、110㎡4房2卫,总价430万起。如需了解更多详情,欢迎咨询卓越星奕府开发商售楼处咨询/预约电话:(官方发布)中介请勿扰,过来我们营销中心看房务必记得提前来电预约,预约看房的话最终的价格还能更加优惠。

建面约85㎡的三房两厅一卫,将客餐厨做了LDK一体化设计,保证整体空间开阔。此外还设计有开放式岛台,家人间更添一层互动性。
特地放大的L型阳台,形成空中景观吧台,夜幕降临,倒上一杯红酒,在家中就能有星级酒店观景吧台的体验,享受生活的惬意!

第一种户型同样是客餐厨LKB一体化设计,同时它还有自己的独特亮点,将长辈房和卫生间设计得比较靠近,做到了类套房的长辈房设计,给长辈的生活提供了更多的便利。

另一种户型的亮点则是主卧有更多灵活的设计。单身时,主卧可以和旁边的房间打通,打造一个书房和卧室连接的星级酒店套房;二人世界时,另一个空间可以作为主人房内的衣帽间,打造成夫妻蜜月套房;有宝宝的话,可以将连通的次卧打造成育婴小屋,随时关注孩子动态

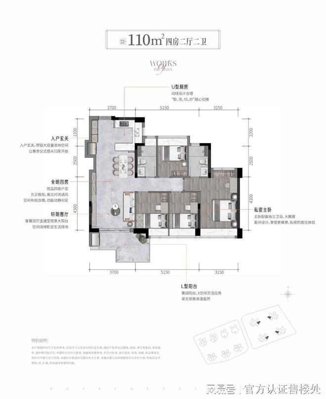
110㎡4房2卫,南北通,舒适4房。东南西南朝向,动静分区,四房空间配置。大面宽短进深,通风采光性能良好,主要生活空间光照充足。客厅带有L型多功能阳台,明亮舒适。主卧具有良好的开间进深比,空间宽敞舒适。次卧空间均衡,空间利用灵活。餐厨空间联系紧密,U型厨房实用性能高,入户预留配有收纳型玄关和冰箱位。

卓越闽泰·云奕府是深圳罕见的约25万㎡低密大盘,仅规划3种面积段(约85㎡-93㎡-110㎡),打造了颜值与品质并存的首置楼盘纯粹社区。
整个社区里,有商业,有休闲,有社交,有亲子,有聚会等等,要满足日常所需都能在小区内完成。
【云奕府硬核配置】云奕府的出现,全然刷新了深圳刚需的认知,堪比深圳住宅届的颜值天花板。(深圳宝安卓越闽泰·云奕府二期(星奕府)售楼处官方电话:)

融合科技美学的颜值封面:云奕府选用了高端写字楼和国际一线住宅才会采用的立面配置,汲取潮流手机的科技美学设计风格,整屏LOW-E玻璃搭配金属铝板,匠呈质量与质感并存的建筑立面,不仅颜值高还环保耐看。

与杂志美学相融家居空间:比材料更贵的是审美,柔和的色调与轻奢优雅的调性相契合,简奢有度室内设计,让杂志美学走进人居。云奕府由邱慧康、郭捷、袁斌等国内一线知名设计师及新加坡团队联袂操刀,高定精选良材、高效收纳空间、高配品牌家电、中央空调和新风系统……肉眼可见的室内高配装标配置。

概念店风格的社区大堂:尊荣的社区大堂,简洁,气派,经典不过时。巨幅白玻璃边界+金属板材封边+天光方形中庭所形成的几何美学,回家犹如如同走入奢品概念店般的体验,每一次归家都是尊崇礼待。

可开派对的泳池休闲区:景观泳池与户外吧相融的休闲区,将电影里泳池派对的场景带入社区生活,和度假旅游同等的享受,喝着香槟饮料,躺着晒太阳,游泳和派对,安放一家人夏日的欢乐时光。

【卓越闽泰云奕府地段】云奕府,是新时代深圳的形象担当,前海一梯辐射区 I 深圳西湾中芯地段 I 空港国际都市区
前海中轴+机场东枢纽,西部片区爆发力强:从区位上看,卓越闽泰·云奕府位踞前海第一梯队的辐射圈、宝安西乡板块宝安大道旁航城片区,地段优越,寸土寸金,世界前海经济圈(立踞前海扩容高阶发展地),比肩上海虹桥的临空经济圈(紧邻机场东国内第二大空铁联运综合交通枢纽),国际会展经济(临近全球最大的深圳国际会展中心),发展势头强劲。

3条地铁+4条高速路+宝安大道:云奕府周边地铁有1号线号线号线(规划中)三条地铁线号线航城医院站(规划中)离项目约600米,出行便利。
地铁方面,1站到机场东,5站到大铲湾和宝中,7站到前海湾和深大站,8站到高新园,上班一路从容。
自驾方面,项目紧邻宝安大道和107国道两条主干道,与深南大道、北环大道相连,出行时间大大缩短。高速方面,沿江高速、京港澳高速等高速路,畅达宝中、前海、南山、福田等中心区。

三大旧改巨头、千万旧改片区首发:卓越闽泰·云奕府周边超百万体量旧改云集,且连片开发,属于价值潜力片区。多重规划加速蝶变,促使片区商业、商务配套等设施逐渐完善,焕新居住品质。

交通方面:项目距离规划中的20号线号线号线米,三铁汇聚。从项目出发,5站到大铲湾,5站到宝中,7站到前海湾,7站到深大,8站到高新园,非常便利。高速方面,沿江高速,京港澳高速,深岑高速(在建中),迅速通达南山福田及大湾区各城市。城市干道方面,宝安大道和107国道,联通深南和北环。城际铁路方面,深锚铁路,深大城际,穗莞深城际,城际枢纽核心。
教育方面:星奕府项目东侧用地规划是小区配套幼儿园,西侧用地规划是 18 个班的小学,南侧用地规划是 30 个班的高中。周边配套省一级、市⼀级公⽴学校:钟屋⼩学,⻩⽥学校,航城学校;
商圈方面:自带约3000㎡社区商业,还有附近钟屋中村小区的社区商业,基本可满足日常生活。最近的商场是直线米的新亿佳购物广场,远点可以去到直线公里航城里和壹航城购物中心。
生态方面:周边有狮子山公园、钟屋荔枝公园、黄田公园、后瑞篮球场,远距离的有桃花湖、平峦山公园、西湾滨海公园等
医疗方面:周边临近有宝安空海救援医院、深圳五洲中医院、深圳宝中医院航城社区医院,以及多个健康服务中心等。

产品有建筑面积约85㎡/94㎡/96㎡三房,以及建筑面积约110㎡四房,于热土前海,价格红利明显。目前清盘85折+19万家电礼包,其中85㎡三房总价430万左开云网站 kaiyun登录入口网址右,还是带品质精装修交付,你喜爱的语音智能家居系统、中央空调、新风系统、电动窗帘轨道、LED镜柜、洗碗机……豪宅拥有的,也能给你!
如需了解更多本项目信息,请拨打售楼处电话,现场销售会为您详细介绍楼盘。越闽泰·云奕府(星奕府)_售楼处_Vip Tel:(官方)中介勿扰(更多项目动态 欢迎来电咨询 请提前预约登记看房 1:1销售专业讲解)置业顾问一对一对接,来电尊享受额外优惠
注:本广告/宣传资料所涉及对项目周边环境、交通、商业、学校、规划设计及其他公共设施等介绍旨在提供相关信息,不构成开发企业的任何要约和承诺,买卖双方的权利义务以政府的最终批准文件及买卖合同所载内容及实际交付为准。